Waiata Shores Showhome
1 Gosper Road, Conifer Grove Get directions
Open 7 days: 10am-4pm
We sell brand new, completed homes in carefully selected locations. We expertly incorporate on-trend colours and finishes, providing you with a blank canvas to add your personal style.
Stylish and well positioned three-bedroom terrace homes. Whether you're looking for your first home, your next home, or an investment property - this home is designed to offer the very best of modern living. Built across from a community park this home is sure to impress.
First home buyer? This home falls into the first home buyers cap of $875,000 for new homes in Auckland. You may be able to access a grant to help towards your deposit. Check if you qualify here: https://kaingaora.govt.nz/home-ownership/first-home-grant/
Built to the highest standards of quality, our homes ensure easy, comfortable living in this well-connected, family friendly location.
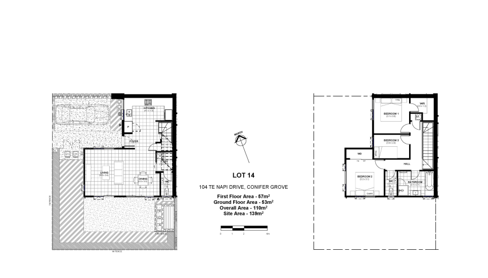
Home features include:
This exciting family-friendly neighbourhood features open green spaces for your family to enjoy: a children's playground, Songbird café, childcare centre, Countdown supermarket and retail precinct. These homes are located a stones throw away from the new countdown and under 10 minutes walk to Te Mahia Train Station.
Waiata Shores is a brand new, family friendly development located in Conifer Grove. The peaceful reserve by the seaside that acts as the boundary of this development will give residents a relaxing place to unwind, walk, run and play.
Images used are either similar to, or artist impression for marketing purposes only.
Our Investor Ready Homes meet or exceed current Healthy Homes Standards. Learn more about why you should invest in new with us here
*Plans subject to change. Floor Area indicated is approximate only.
This exciting new neighbourhood located in Conifer Grove, South Auckland has so much to offer. Featuring plenty of open spaces for the family to enjoy, a children's playground, cafe and childcare centre, plus a Countdown supermarket and retail centre coming soon.
With walkways and cycleways throughout, and easy access to the Southern motorway and public transport it is a conveniently location to live in. There is already a growing sense of pride in this community from existing residents - why not join them?
1 Gosper Road, Conifer Grove Get directions
Open 7 days: 10am-4pm
Fletcher Living will collect and use the personal details you submit or we otherwise collect about you, to provide information on our homes, developments, services and other related purposes.
The full Fletcher Living Privacy Policy is available here. It includes details about what information is collected, and how and who it is used by. It also outlines the process for updating your details, making a complaint or unsubscribing from receiving marketing communication from Fletcher Living.
By submitting this form, you agree to Fletcher Living using your personal information, including names, contact details, registration of your interest in a property and survey results, to send you information to promote its homes, developments and services. You may opt out from receiving further Fletcher Living information from time to time.
In addition to the general information set out in the Fletcher Living Privacy Policy, we collect, use and disclose personal information about you to enable us to perform our business activities and functions and provide quality customer services, including:
• to send communications requested by you;
• answering enquiries and providing information about our products or services;
• entering you into a registration of interest database and/or ballot process if applicable;
• maintaining the content of our website;
• updating our records and keeping your details up to date;
• for our internal business processing, administrative, marketing and planning requirements; and
• for other purposes provided for under any agreement with you or disclosed at the time of collection.
We may disclose your personal information to:
• our employees, related entities, contractors or service providers for the purposes of operating of our business, including information management and electronic storage in other jurisdictions, fulfilling your requests or to provide services and offerings to you;
• suppliers and third parties we have commercial relationships with, and for business, marketing and related purposes; and
• other organisations for purposes authorised with your consent.
We use cookies to ensure that we give you the best experience on our website. By continuing to use this website you are giving consent to cookies being used. View our privacy policy and terms of use for more details.