View all

Waiata Shores

139 Waituarua Road

  • 3 Bedrooms
  • 1 Bathrooms
  • 1 Living Areas
  • 2 Car Pads
  • 114sqm Floor size
  • 192sqm Land size
  • $839,000
  • Selling Now
  • $839,000 Selling Now
  • 3 Bedrooms
  • 1 Bathrooms
  • 1 Living Areas
  • 2 Car Pads
  • 114sqm Floor size
  • 192sqm Land size

Overview

**Make your first home a new home with our $10K First Home Grant. At Fletcher Living, we're committed to helping Kiwis into their first home. With the Government's First Home Grant gone, we're stepping in to support buyers who were counting on it. For a limited time, eligible First Home Buyers can receive $10,000* towards their deposit when they choose a Fletcher Living home. Terms and conditions apply.**

This exquisite end terrace home is more than a place to live; it is a space designed to uplift, inspire, and support the rhythm of modern life. Thoughtfully crafted with a seamless blend of comfort, functionality, and low maintenance living, it invites you into a lifestyle defined by ease, elegance, and possibility.

Step inside and discover an open plan dining and kitchen area that effortlessly connects the indoors with the outdoors, creating a bright, adaptable environment perfect for families who love to grow, gather, and make memories. At the heart of the home, the designer kitchen stands as a true centrepiece, featuring premium appliances and refined Caesarstone benchtops, an inspiring setting for everyday meals and special moments alike. A welcoming family room, along with a convenient ground floor powder room and laundry, enhances the home's thoughtful flow.

Upstairs, the master suite offers a peaceful retreat, complete with a walk in wardrobe that elevates daily living. Two additional generously sized bedrooms, each with its own wardrobe, provide comfort and flexibility for family, guests, or creative spaces. The beautifully appointed family bathroom, featuring a relaxing bath and ample storage, adds another layer of ease.

Outside, two dedicated car spaces complete the picture of a home designed to support a life well lived, one where style meets simplicity and every detail works in harmony to inspire your next chapter.

Built to the highest standards, this home promises year-round comfort and tranquility in a well-connected, family-friendly neighborhood, situated right across from the reserve.

**Key Features: **
• 3 spacious bedrooms (Master with WIR)
• 1.5 bathrooms
• Fisher Paykel appliances and Caesarstone benchtops
• Seamless indoor-outdoor flow to a private courtyard
• Roller blinds, double glazing, and full insulation
• Heat pump and security alarm system
• Keyless entry for added convenience
• Floor-to-ceiling bathroom tiles
• Fully landscaped grounds
• Backed by a Master Build Guarantee

Please be advised that the images presented are solely an artist's interpretation.

**Lifestyle and Location: **
Nestled in the vibrant Waiata Shores community in Conifer Grove, this home is just a short stroll from green open spaces, a children's playground, Cafes, a childcare centre and a new Woolworths supermarket.

Enjoy the serenity of the nearby seaside reserve-perfect for walking, running, or simply unwinding in nature.

All homes are Investor Ready and meet current Healthy Homes Standards.

READ MORE

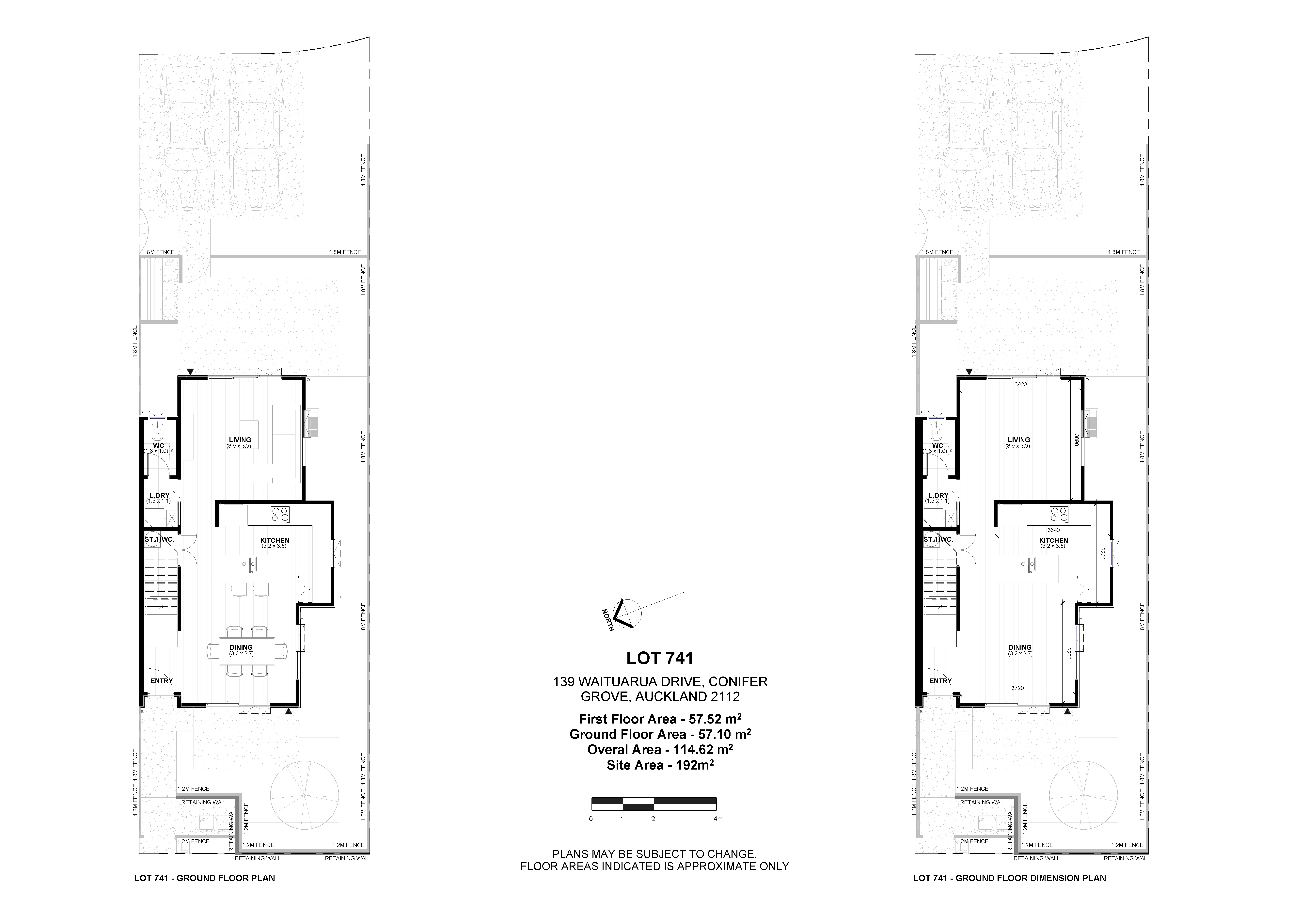
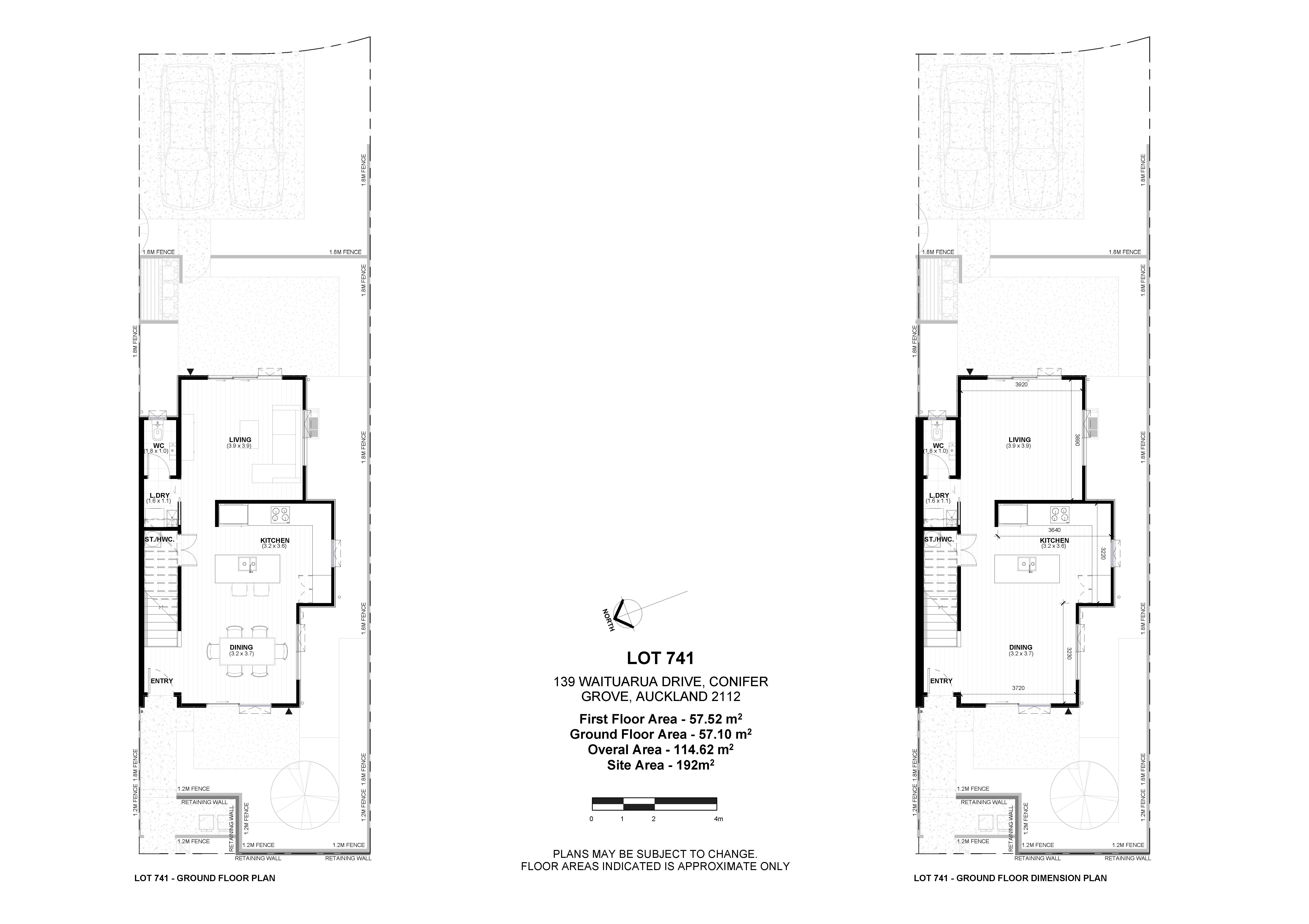
Floor plan

   View larger image

*Plans subject to change. Floor Area indicated is approximate only.

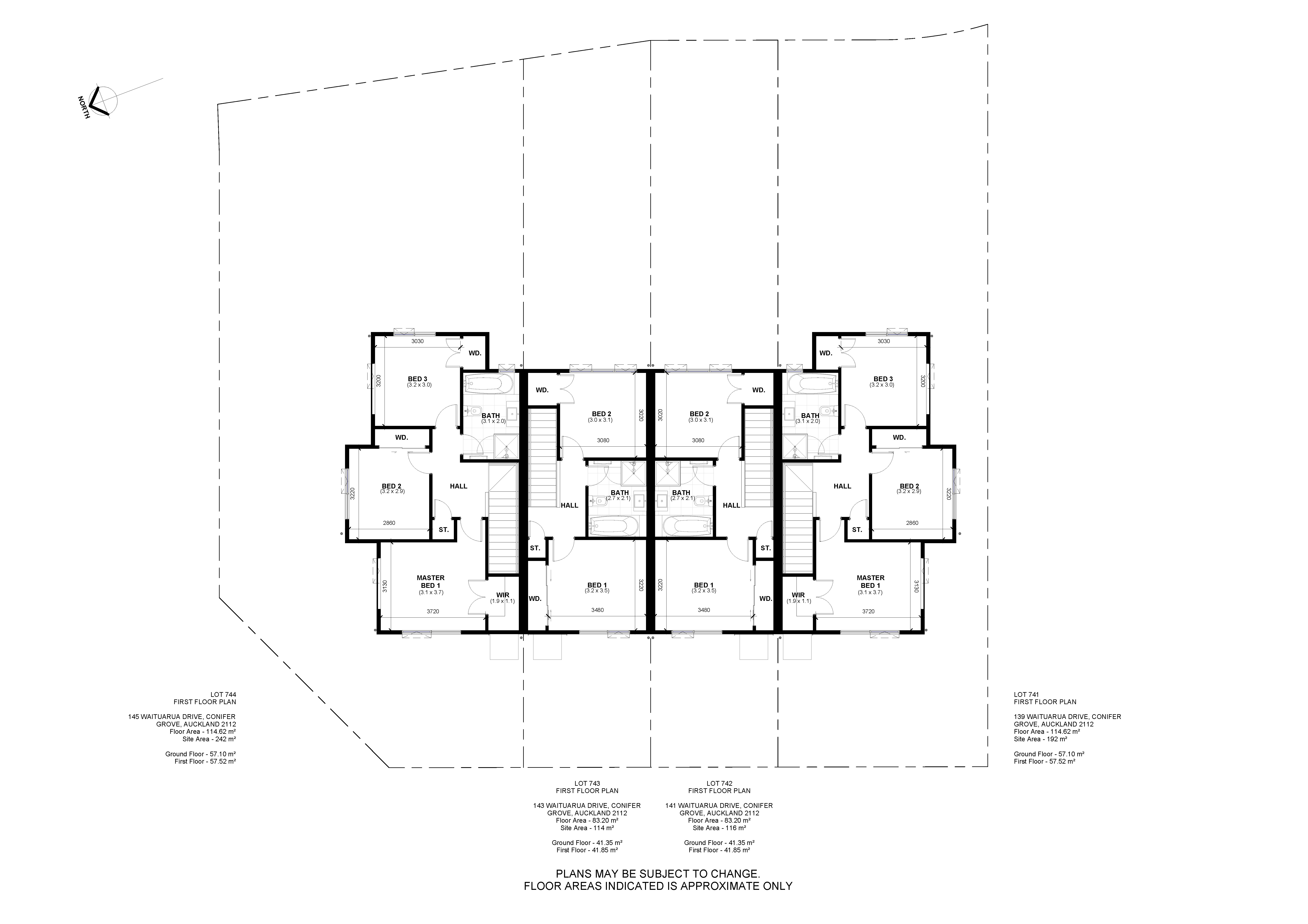
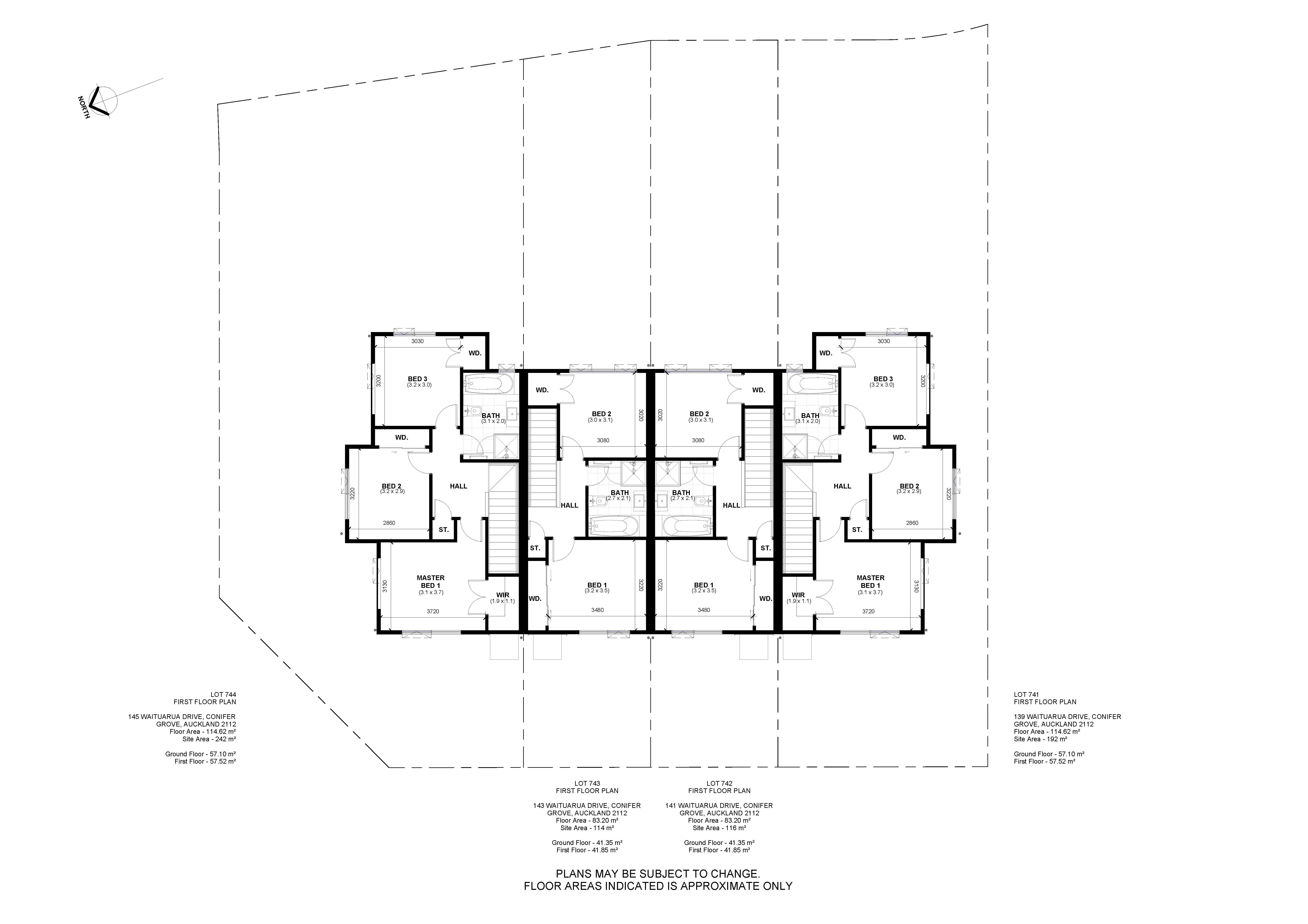
   View larger image

*Plans subject to change. Floor Area indicated is approximate only.

LR AO 2021 02 12 FLETCHER LIVING 0748
  • apartment North Auckland, Auckland
  • apartment South Auckland, Auckland
  • apartment North Auckland, Auckland
  • apartment South Auckland, Auckland
  • apartment South Auckland, Auckland
  • apartment West Auckland, Auckland
  • apartment East Auckland, Auckland
  • apartment South Auckland, Auckland
  • apartment South Auckland, Auckland
  • apartment East Auckland, Auckland
  • apartment East Auckland, Auckland
  • apartment Central Auckland, Auckland
  • apartment West Auckland, Auckland
  • apartment South Auckland, Auckland
  • apartment East Auckland, Auckland

We’d love to show you around

Visit our Showhome to get a feel for the quality of our homes and discuss your requirements with our friendly New Home Consultants. We’d love to work with you to find your dream home.
We’d love to show you around