Stonefields Showhome
1 Whareponga Lane, Stonefields Get directions
Open 7 days: 10am-4pm (Tuesday 12pm-4pm)
Closed public holidays.
We sell brand new, completed homes in carefully selected locations. We expertly incorporate on-trend colours and finishes, providing you with a blank canvas to add your personal style.
*Visit our Showhome at 1 Reitu Rise, Stonefields, Auckland. Open Daily 10am to 4 pm.** except Tuesday
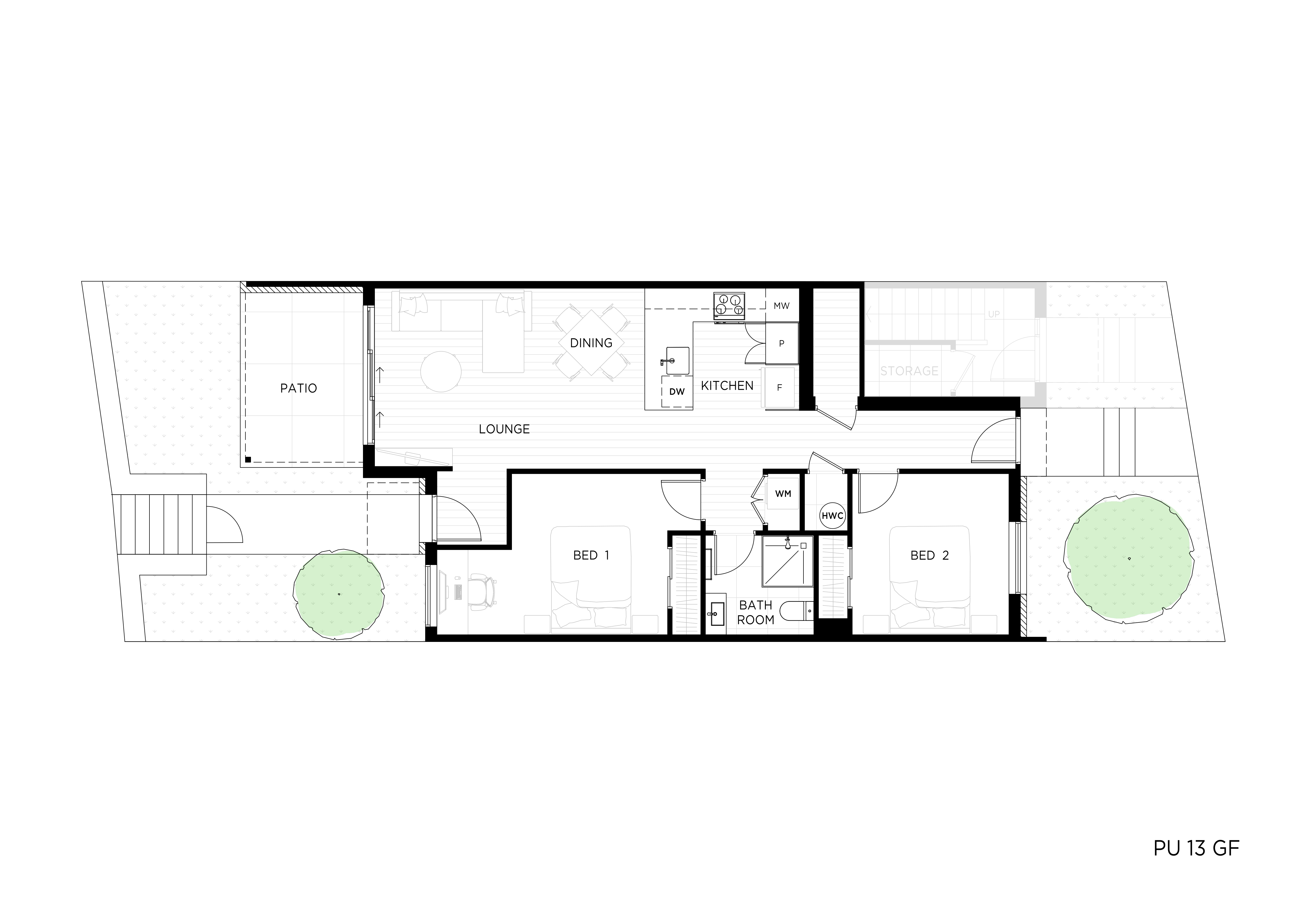
Introducing a remarkable collection of walk-up units in the serene Stonefields neighborhood, offering unmatched elegance. The first release features the Basalt Residences—eight exquisite two-level walk-up units designed for exceptional living in a prime location.
Exuding modern sophistication, these elegantly designed two-bedroom residences offer a seamless, light-filled open-plan layout ideal for today’s discerning lifestyle. Available in both ground and first level options.
Filled with natural light, each home features a designer kitchen with premium appliances, and spacious living and dining areas that effortlessly extend to a private balcony or outdoor courtyard. Perfect as a lock-and-leave option, these residences provide the ultimate in convenience and stylish contemporary living.
Beautifully designed with contemporary interiors and smart use of space, they offer the ultimate in convenient, modern living. Nestled within Stonefields, these two-bedroom homes are part of an architecturally designed collection of eight units in a private laneway off Korere Terrace. With a mix of 2-3 bedroom options, these homes represent outstanding quality, just minutes from the wetlands boardwalk and pocket parks.
We're excited to share that the home will be ready for viewing and moving in by May 2025! If you have any questions or would like more details, feel free to reach out to our friendly sales team. We can't wait to help you find your perfect home!
Home features include:
* 2 bedroom, 1 bathroom
* European style kitchen
* Open plan living
* High quality kitchen appliances
* Air conditioning heat pump
* Double glazing
* Car pad for parking
Just a friendly reminder that the external photos are artistic impressions, and the internal photos show a similar apartment.
Our Investor Ready Homes meet or exceed current Healthy Homes Standards. Learn more about why you should invest in new with us here
*Plans subject to change. Floor Area indicated is approximate only.
*Plans subject to change. Floor Area indicated is approximate only.
*Plans subject to change. Floor Area indicated is approximate only.
*Plans subject to change. Floor Area indicated is approximate only.
Stonefields is a well-established community and Auckland's newest city fringe suburb. A premium, sought-after location offering all the benefits of a new home within 10kms of the CBD.
Explore this vibrant urban village with popular eateries, reserves, attractively landscaped parks and open spaces. Take a stroll around the peaceful Maungarei Springs Wetland, HeritageTrail or walk up Mt Wellington to take in stunning views of Auckland.
Stonefields School offers the community the very best of modern educational opportunities for young residents, all within a short walk from home, with bus services available to nearby high schools.
1 Whareponga Lane, Stonefields Get directions
Open 7 days: 10am-4pm (Tuesday 12pm-4pm)
Closed public holidays.
Fletcher Living will collect and use the personal details you submit or we otherwise collect about you, to provide information on our homes, developments, services and other related purposes.
The full Fletcher Living Privacy Policy is available here. It includes details about what information is collected, and how and who it is used by. It also outlines the process for updating your details, making a complaint or unsubscribing from receiving marketing communication from Fletcher Living.
By submitting this form, you agree to Fletcher Living using your personal information, including names, contact details, registration of your interest in a property and survey results, to send you information to promote its homes, developments and services. You may opt out from receiving further Fletcher Living information from time to time.
In addition to the general information set out in the Fletcher Living Privacy Policy, we collect, use and disclose personal information about you to enable us to perform our business activities and functions and provide quality customer services, including:
• to send communications requested by you;
• answering enquiries and providing information about our products or services;
• entering you into a registration of interest database and/or ballot process if applicable;
• maintaining the content of our website;
• updating our records and keeping your details up to date;
• for our internal business processing, administrative, marketing and planning requirements; and
• for other purposes provided for under any agreement with you or disclosed at the time of collection.
We may disclose your personal information to:
• our employees, related entities, contractors or service providers for the purposes of operating of our business, including information management and electronic storage in other jurisdictions, fulfilling your requests or to provide services and offerings to you;
• suppliers and third parties we have commercial relationships with, and for business, marketing and related purposes; and
• other organisations for purposes authorised with your consent.
We use cookies to ensure that we give you the best experience on our website. By continuing to use this website you are giving consent to cookies being used. View our privacy policy and terms of use for more details.