View all

Corner Park Estate Road & Parkmore Drive, Karaka

Open to view:

Mon 12-4pm
Tue-Sun 10-4pm

Fletcher Living are excited to bring to you Park Green, Karaka. This stunning waterside location, features cycleways, walkways, hospitality and a brand new primary school.

Featuring stunning architecture, unique design and suburban-estuary setting, Park Green is a high-quality environment with attractive neighbourhoods that are engaging, vibrant and a welcome place to live.

Whether you are looking to buy your first home or your next home, there is plenty of designs to suit you.

 

 

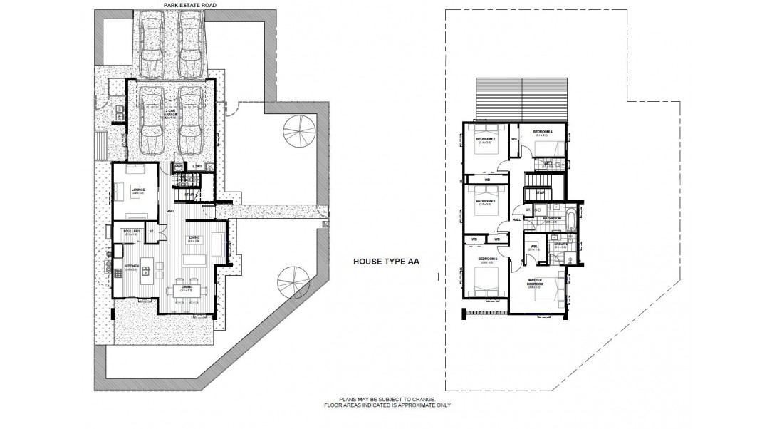
Floor plan

   View larger image

*Plans subject to change. Floor Area indicated is approximate only.

Featured homes


View Listing
Bedrooms 3 Bathrooms 1 Car Pads 2
$799,000
Ready Now
Promotion
View Listing
Bedrooms 2 Bathrooms 1 Car Pads 1
$659,000
Ready Now
Promotion
View Listing
Bedrooms 5 Bathrooms 2 Living Areas 1 Garages 1 Car Pads 1
$1,239,000
Selling Now
Promotion

We use cookies to ensure that we give you the best experience on our website. By continuing to use this website you are giving consent to cookies being used. View our privacy policy and terms of use for more details.