View all

21 Te Ara Tu Para

Open to view:

Wednesday to Monday 10 to 4 pm.
Tuesday 12 pm to 4 pm

Our brand new homes in Ōkahukura are quality-built and easy to care for, giving you more time to do the things you love. We have a range of homes on offer to suit all ages, stages and lifestyles.

Ōkahukura offers a combination of 1-5 bedroom homes mix of modern 1-5 bedrooms including standalone homes, terraces and walk-up apartments.

Tucked away, this exclusive neighbourhood offers a rare sense of seclusion, elevated from the roadside and surrounded by greenery that enhances its peaceful, retreat-like feel.

Set on a natural plateau behind Massey University, Ōkahukura offers sweeping views to the north and west while maintaining effortless access to Albany’s many amenities. Carefully designed homes, shared community spaces, and thoughtful landscaping foster a strong sense of belonging.

Our stunning new showhome showcases all that Fletcher Living homes have to offer. Visit us this weekend at 21 Te Ara Tu Para to view, and learn more our brand new homes on offer.

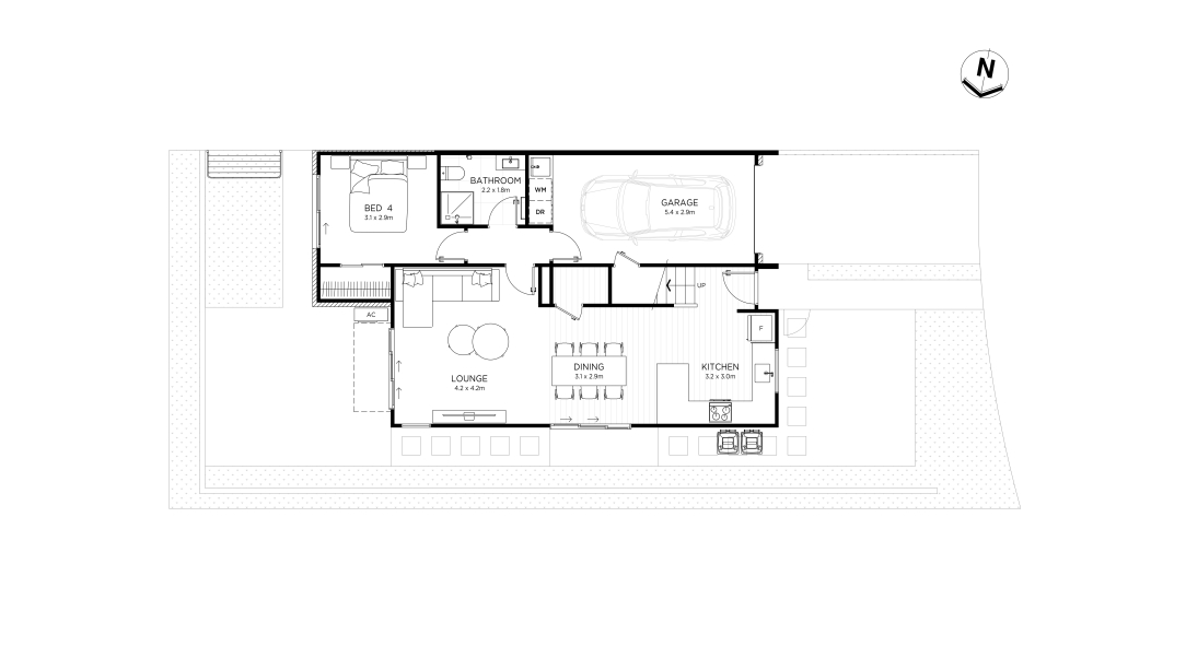
Floor plan

   View larger image

*Plans subject to change. Floor Area indicated is approximate only.

   View larger image

*Plans subject to change. Floor Area indicated is approximate only.

Featured homes


View Listing
Bedrooms 4 Bathrooms 3 Living Areas 2 Garages 1
$1,309,000
Ready Now
Promotion
View Listing
Bedrooms 3 Bathrooms 2 Living Areas 1 Car Pads 1
$1,019,000
Selling Now
Promotion
View Listing
Bedrooms 2 Bathrooms 2 Living Areas 1
$849,000
Selling Now
Promotion

We use cookies to ensure that we give you the best experience on our website. By continuing to use this website you are giving consent to cookies being used. View our privacy policy and terms of use for more details.