Ōkahukura, Albany Showhome
21 Te Ara Tu Para, Albany Get directions
Open 7 days:10 am to 4 pm (Tuesday 1 pm to 4 pm)
We sell brand new, completed homes in carefully selected locations. We expertly incorporate on-trend colours and finishes, providing you with a blank canvas to add your personal style.
We have a limited number of 5 bedroom homes available now at Okahukura.
This brand new five-bedroom home offers the perfect solution for growing families. Located in a thriving community with top-rated schools right on your doorstep, this is an opportunity you won't want to miss.
Light-filled open-plan living with modern kitchens, seamless indoor-outdoor flow, and low-maintenance gardens - all designed for your family's comfort.
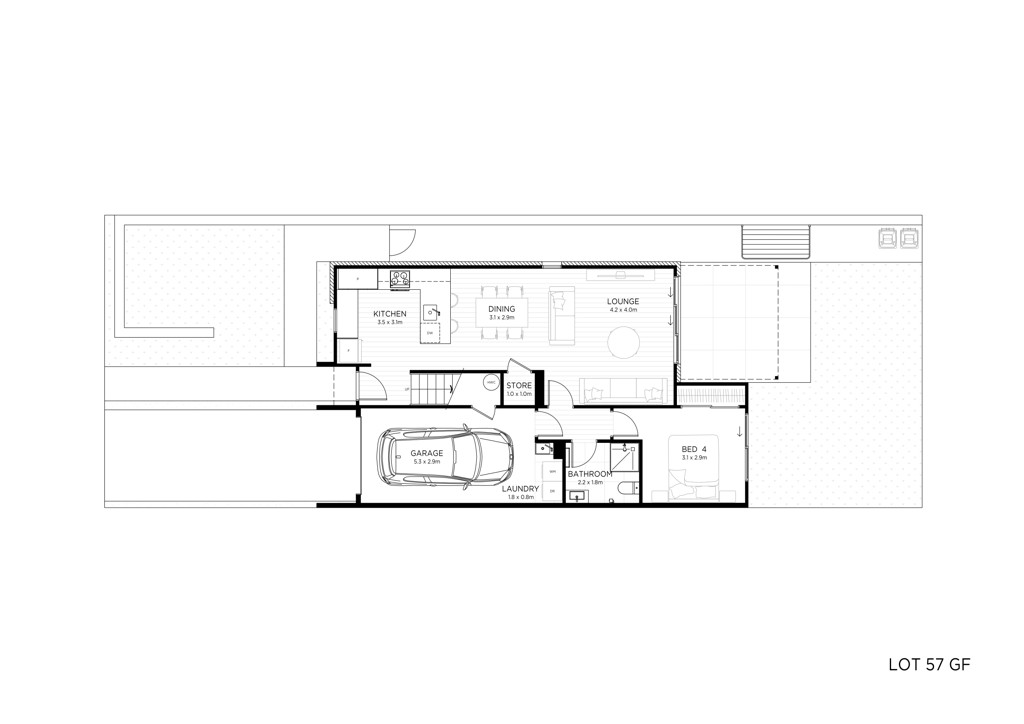
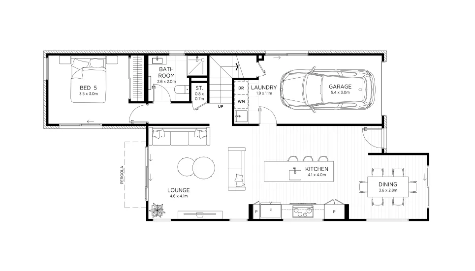
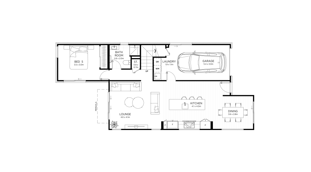
A stunning designer kitchen with quality appliances anchors the downstairs living area, alongside separate dining and living spaces. A guest toilet, laundry, and storage complete this level. A fifth bedroom, perfect for teenagers or guests, offers added flexibility.
Upstairs, you'll find four sizeable bedrooms with wardrobes and a full bathroom. The master suite boasts a walk-in wardrobe and ensuite, ensuring peace and quiet for parents.
Home features:
Tucked away, this exclusive neighbourhood offers a rare sense of seclusion, elevated from the roadside and surrounded by greenery that enhances its peaceful, retreat-like feel.
Set on a natural plateau behind Massey University, Ōkahukura offers sweeping views to the north and west while maintaining effortless access to Albany’s many amenities. Carefully designed homes, shared community spaces, and thoughtful landscaping foster a strong sense of belonging.
Contact our New Home Consultants today for more information and to book an appointment.
*Plans subject to change. Floor Area indicated is approximate only.
*Plans subject to change. Floor Area indicated is approximate only.
Ōkahukura – Albany, is Fletcher Living’s latest upcoming development on Auckland’s North Shore. Nestled behind the Massey University campus this development will see a mix of modern new 1-5 bedroom homes including standalone homes, terraces and walk-up apartments. Few, if any, residential developments will be as well-connected as Ōkahukura, with everything you need right on your doorstep.
21 Te Ara Tu Para, Albany Get directions
Open 7 days:10 am to 4 pm (Tuesday 1 pm to 4 pm)
Fletcher Living will collect and use the personal details you submit or we otherwise collect about you, to provide information on our homes, developments, services and other related purposes.
The full Fletcher Living Privacy Policy is available here. It includes details about what information is collected, and how and who it is used by. It also outlines the process for updating your details, making a complaint or unsubscribing from receiving marketing communication from Fletcher Living.
By submitting this form, you agree to Fletcher Living using your personal information, including names, contact details, registration of your interest in a property and survey results, to send you information to promote its homes, developments and services. You may opt out from receiving further Fletcher Living information from time to time.
In addition to the general information set out in the Fletcher Living Privacy Policy, we collect, use and disclose personal information about you to enable us to perform our business activities and functions and provide quality customer services, including:
• to send communications requested by you;
• answering enquiries and providing information about our products or services;
• entering you into a registration of interest database and/or ballot process if applicable;
• maintaining the content of our website;
• updating our records and keeping your details up to date;
• for our internal business processing, administrative, marketing and planning requirements; and
• for other purposes provided for under any agreement with you or disclosed at the time of collection.
We may disclose your personal information to:
• our employees, related entities, contractors or service providers for the purposes of operating of our business, including information management and electronic storage in other jurisdictions, fulfilling your requests or to provide services and offerings to you;
• suppliers and third parties we have commercial relationships with, and for business, marketing and related purposes; and
• other organisations for purposes authorised with your consent.
We use cookies to ensure that we give you the best experience on our website. By continuing to use this website you are giving consent to cookies being used. View our privacy policy and terms of use for more details.