Ormiston Fields Showhome
19 Karamu Road Get directions
Open 7 days: 10am-4pm (Tuesday 12pm-4pm)
Closed public holidays.
We sell brand new, completed homes in carefully selected locations. We expertly incorporate on-trend colours and finishes, providing you with a blank canvas to add your personal style.
*Visit our Showhome at Ormiston Fields Showhome at 19 Karamu Road, Flat Bush* Open 7 days: 10am-4pm (Tuesday 12pm-4pm). Closed public holidays.
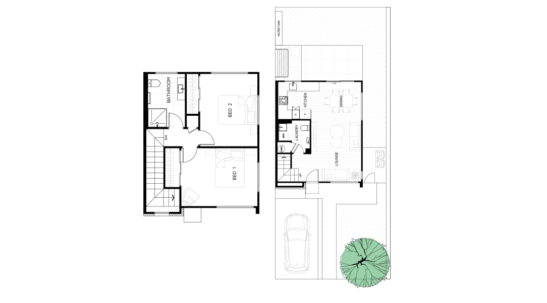
Embrace the opportunity to own your first home or a low-maintenance investment property with this exceptional, brand new 2-bedroom end terrace house. Experience the brilliance of spacious, contemporary open plan living, where clever design meets modern features, making daily living and entertaining effortless.
The open-plan layout showcases a stylish European-style kitchen and a generous dining area, offering the versatility to host any gathering. Step outside to your private patio and outdoor space, an idyllic retreat for relaxation and socializing.
Upstairs, discover two inviting double bedrooms and a family-sized bathroom, providing generous accommodation for everyone. With an additional toilet downstairs for guests' convenience and low-maintenance landscaping, this home promises ease and comfort, allowing you to focus on creating unforgettable memories.
Get in touch with our New Home Consultant for more information.
Home features:
*2 bedroom, 1.5 bathroom (separate WC downstairs)
*European design kitchen with open plan living
*Quality kitchen appliances
*Air conditioning heat pump
*Double glazing
*Car pad for parking
*Rain water retention tank for garden use
*Fully landscaped
*Security alarm system
*10 Year Master Build Guarantee
Please note that photos are taken of a similar home.
Get in touch with our New Home Consultant for more information.
Our Investor Ready Homes meet or exceed current Healthy Homes Standards. Learn more about why you should invest in new with us here
*Plans subject to change. Floor Area indicated is approximate only.
Ormiston Fields is located in Flat Bush, situated within close proximity to open green spaces with Murphy's Bush Reserve within walking distance to our planned development, alongside great access to transport options, motorway connections and nearby amenities that Ormiston Town Centre and Manukau offer. Located 25km from Auckland's CBD.
19 Karamu Road Get directions
Open 7 days: 10am-4pm (Tuesday 12pm-4pm)
Closed public holidays.
Fletcher Living will collect and use the personal details you submit or we otherwise collect about you, to provide information on our homes, developments, services and other related purposes.
The full Fletcher Living Privacy Policy is available here. It includes details about what information is collected, and how and who it is used by. It also outlines the process for updating your details, making a complaint or unsubscribing from receiving marketing communication from Fletcher Living.
By submitting this form, you agree to Fletcher Living using your personal information, including names, contact details, registration of your interest in a property and survey results, to send you information to promote its homes, developments and services. You may opt out from receiving further Fletcher Living information from time to time.
In addition to the general information set out in the Fletcher Living Privacy Policy, we collect, use and disclose personal information about you to enable us to perform our business activities and functions and provide quality customer services, including:
• to send communications requested by you;
• answering enquiries and providing information about our products or services;
• entering you into a registration of interest database and/or ballot process if applicable;
• maintaining the content of our website;
• updating our records and keeping your details up to date;
• for our internal business processing, administrative, marketing and planning requirements; and
• for other purposes provided for under any agreement with you or disclosed at the time of collection.
We may disclose your personal information to:
• our employees, related entities, contractors or service providers for the purposes of operating of our business, including information management and electronic storage in other jurisdictions, fulfilling your requests or to provide services and offerings to you;
• suppliers and third parties we have commercial relationships with, and for business, marketing and related purposes; and
• other organisations for purposes authorised with your consent.
We use cookies to ensure that we give you the best experience on our website. By continuing to use this website you are giving consent to cookies being used. View our privacy policy and terms of use for more details.