View all

Hobsonville Point

58 Clark Road

  • 3 Bedrooms
  • 2.5 Bathrooms
  • 1 Living Areas
  • 1 Car Pads
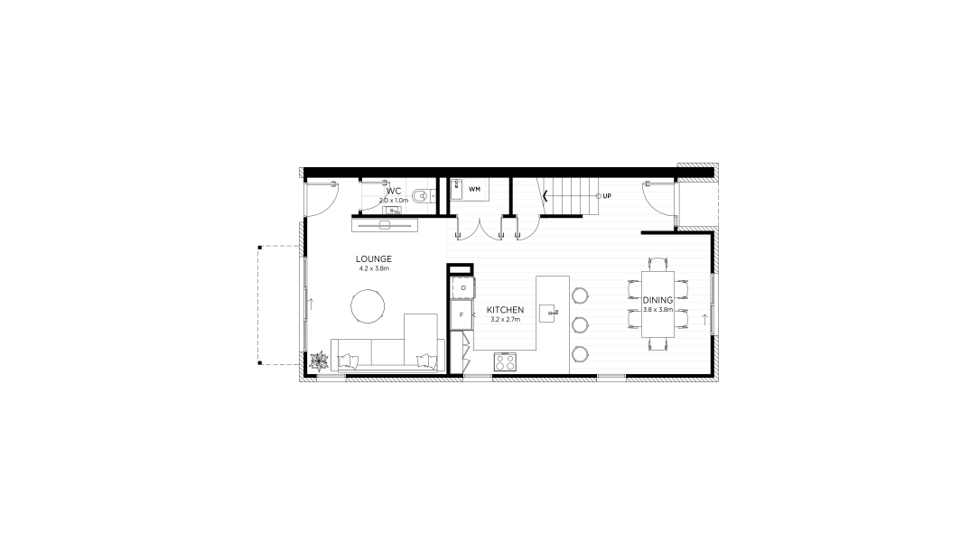
  • 124sqm Floor size
  • 173sqm Land size
  • SOLD
  • SOLD
  • 3 Bedrooms
  • 2.5 Bathrooms
  • 1 Living Areas
  • 1 Car Pads
  • 124sqm Floor size
  • 173sqm Land size

Overview

This modern two-level, three bedroom terrace home is designed for easy living - this is our last available terrace until our next release, so be quick! 

Please note imagery used is of a similar to home and is virtually staged for marketing purposes. 

Featuring a beautifully designed and well appointed kitchen, with quality appliances, flowing directly into the spacious dining area. The separate lounge area features seamless indoor-outdoor flow to a private patio. This level also features a downstairs guest toilet, laundry space and ample storage. 

Second level living accommodates three bedrooms, all with their own wardrobe, a master with ensuite, and family bathroom that caters well for the rest of the household and guests.

Features include:

  • Open plan kitchen and dining
  • Stylish kitchen with quality appliances
  • 3 bedrooms, 2 bathrooms
  • Guest toilet downstairs
  • 1 off-street car park
  • Heat pump
  • Ample storage space
  • Outdoor patio and living area
  • 10 Year Master Build Guarantee

Perfectly positioned in this vibrant and diverse community, surrounded by beautiful pocket parks, coastal walking trails, cycleways, farmers markets, an off-leash dog park, local cafes and eateries, quality schooling options, supermarkets, medical facilities and shopping - all within walking distance of this new home. 

Please contact one of our friendly New Home Consultants for more information, or visit our open home this weekend!  Saturday & Sunday, 11:30pm-12pm. 

 

READ MORE

Floor plan

   View larger image

*Plans subject to change. Floor Area indicated is approximate only.

   View larger image

*Plans subject to change. Floor Area indicated is approximate only.

Hobsonville point

We’d love to show you around

Visit our Showhome to get a feel for the quality of our homes and discuss your requirements with our friendly New Home Consultants. We’d love to work with you to find your dream home.
We’d love to show you around

We use cookies to ensure that we give you the best experience on our website. By continuing to use this website you are giving consent to cookies being used. View our privacy policy and terms of use for more details.