Te Uru, Hobsonville Point Showhome
G03/6 Rauroa Lane, Hobsonville Get directions
Viewings are welcome by private appointment.
We sell brand new, completed homes in carefully selected locations. We expertly incorporate on-trend colours and finishes, providing you with a blank canvas to add your personal style.
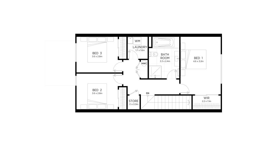
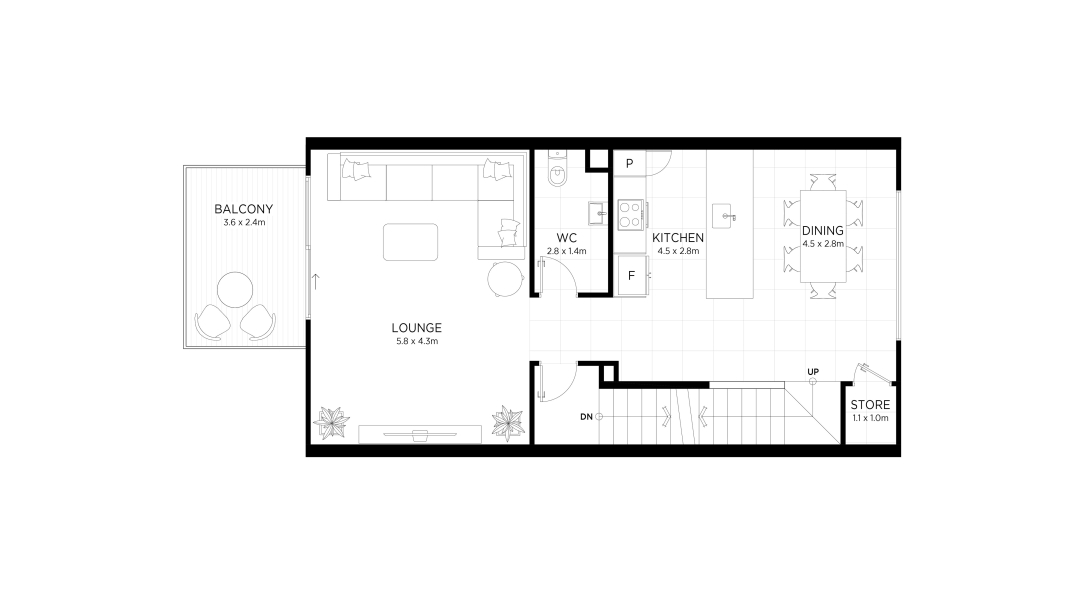
This spacious 2-level, three-bedroom apartment is ready to move in now. Whether you're looking for your first home, your next home, or an investment property - this home is designed to offer the very best of modern living in a popular location.
Hobsonville Point is a master planned community that’s been designed with apartment lovers in mind.
Our architects have considered privacy and a sense of space when they designed these apartments, with only four homes per complex. Featuring designer kitchens, open plan living, generous sun-filled balconies, modern bathrooms and an allocated car park. Move in now and start living from day one.
This apartment features:
Complemented by extensive open green spaces, coastal walkways, public transport, shopping facilities, and a vibrant hospitality scene, all within walking distance of these homes! Make Hobsonville Point your new home today.
Please note: Some images are of a similar to home or are virtually staged for marketing purposes. Colours and specifications will vary when viewing these homes, imagery is indicative only.
Be quick! Please contact one of our friendly New Home Consultants to view today, or visit our showhome this weekend!
*Plans subject to change. Floor Area indicated is approximate only.
*Plans subject to change. Floor Area indicated is approximate only.
Hobsonville Point is a peaceful and beautiful sanctuary just 25 minutes from the CBD by ferry or 20 minutes by motorway off peak. A growing and sought-after community on the peninsula, nestled between Albany and West Harbour and surrounded by the waters of Waitemata Harbour. A family friendly location with sculpture trail, parks, walkways, brand new schools and a supermarket. A bustling Sunday farmers market and cafe are within minutes of your doorstep.
G03/6 Rauroa Lane, Hobsonville Get directions
Viewings are welcome by private appointment.
Fletcher Living will collect and use the personal details you submit or we otherwise collect about you, to provide information on our homes, developments, services and other related purposes.
The full Fletcher Living Privacy Policy is available here. It includes details about what information is collected, and how and who it is used by. It also outlines the process for updating your details, making a complaint or unsubscribing from receiving marketing communication from Fletcher Living.
By submitting this form, you agree to Fletcher Living using your personal information, including names, contact details, registration of your interest in a property and survey results, to send you information to promote its homes, developments and services. You may opt out from receiving further Fletcher Living information from time to time.
In addition to the general information set out in the Fletcher Living Privacy Policy, we collect, use and disclose personal information about you to enable us to perform our business activities and functions and provide quality customer services, including:
• to send communications requested by you;
• answering enquiries and providing information about our products or services;
• entering you into a registration of interest database and/or ballot process if applicable;
• maintaining the content of our website;
• updating our records and keeping your details up to date;
• for our internal business processing, administrative, marketing and planning requirements; and
• for other purposes provided for under any agreement with you or disclosed at the time of collection.
We may disclose your personal information to:
• our employees, related entities, contractors or service providers for the purposes of operating of our business, including information management and electronic storage in other jurisdictions, fulfilling your requests or to provide services and offerings to you;
• suppliers and third parties we have commercial relationships with, and for business, marketing and related purposes; and
• other organisations for purposes authorised with your consent.
We use cookies to ensure that we give you the best experience on our website. By continuing to use this website you are giving consent to cookies being used. View our privacy policy and terms of use for more details.