- Find your home
- Showhomes
-
Locations
-
Our Locations
View all
We sell brand new, completed homes in carefully selected locations. We expertly incorporate on-trend colours and finishes, providing you with a blank canvas to add your personal style.
- Auckland Locations
-
Canterbury Locations
- Greenstead - Lincoln
- One Central - City
- Future Locations
- Harakeke Halswell
-
Our Locations
- Resources
- Inspiration
Hobsonville Point
15 Ringa Matau
- SOLD
- SOLD
Overview
These modern new two-level, three-bedroom terrace homes are designed for living and are available for purchase off-plan now. Please get in touch with our New Home Consultants for anticipated completion dates and to discuss the off-plan sales process.
Offering the perfect opportunity to secure a family home in a popular and thriving community. With light filled, open plan living, you have all the comforts of brand new, with modern kitchen appliances, seamless indoor-outdoor flow and low-maintenance landscaping all designed with your needs in mind.
The master bedroom is complete with modern ensuite and walk in wardrobe - a full family bathroom is also found on this level.
Downstairs features a stunning designer kitchen with quality appliances which flows seamlessly through to the dining and family area.
Home features:
- 3 bedrooms
- 2.5 bathrooms
- Stylish kitchen with quality appliances
- Open plan living and dining area
- Spacious bedrooms
- Separate laundry area
- Ample storage
- Heat pump and alarm system
- Outdoor patio area
Please note: Images are of a similar home and are virtually staged for marketing purposes. Colours and specifications will vary when viewing these homes, imagery is indicative only.
Please contact one of our friendly New Home Consultants to view today, or visit our showhome this weekend! Corner of Hobsonville Point Road and Te Rito Road (2 Hobsonville Pt Road). Open 10am-4pm Sat/Sun. By appointment Mon-Fri.
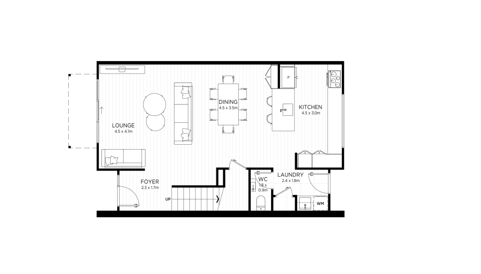
Floor plan
*Plans subject to change. Floor Area indicated is approximate only.
*Plans subject to change. Floor Area indicated is approximate only.
Address
Hobsonville Point
Hobsonville Point is a peaceful and beautiful sanctuary just 25 minutes from the CBD by ferry or 20 minutes by motorway off peak. A growing and sought-after community on the peninsula, nestled between Albany and West Harbour and surrounded by the waters of Waitemata Harbour. A family friendly location with sculpture trail, parks, walkways, brand new schools and a supermarket. A bustling Sunday farmers market and cafe are within minutes of your doorstep.
Similar homes
We’d love to show you around
Visit our Showhome to get a feel for the quality of our homes and discuss your requirements with our friendly New Home Consultants. We’d love to work with you to find your dream home.We’d love to show you around
Fletcher Living Privacy Collection Statement
Fletcher Living will collect and use the personal details you submit or we otherwise collect about you, to provide information on our homes, developments, services and other related purposes.
The full Fletcher Living Privacy Policy is available here. It includes details about what information is collected, and how and who it is used by. It also outlines the process for updating your details, making a complaint or unsubscribing from receiving marketing communication from Fletcher Living.
By submitting this form, you agree to Fletcher Living using your personal information, including names, contact details, registration of your interest in a property and survey results, to send you information to promote its homes, developments and services. You may opt out from receiving further Fletcher Living information from time to time.
In addition to the general information set out in the Fletcher Living Privacy Policy, we collect, use and disclose personal information about you to enable us to perform our business activities and functions and provide quality customer services, including:
• to send communications requested by you;
• answering enquiries and providing information about our products or services;
• entering you into a registration of interest database and/or ballot process if applicable;
• maintaining the content of our website;
• updating our records and keeping your details up to date;
• for our internal business processing, administrative, marketing and planning requirements; and
• for other purposes provided for under any agreement with you or disclosed at the time of collection.
We may disclose your personal information to:
• our employees, related entities, contractors or service providers for the purposes of operating of our business, including information management and electronic storage in other jurisdictions, fulfilling your requests or to provide services and offerings to you;
• suppliers and third parties we have commercial relationships with, and for business, marketing and related purposes; and
• other organisations for purposes authorised with your consent.
We use cookies to ensure that we give you the best experience on our website. By continuing to use this website you are giving consent to cookies being used. View our privacy policy and terms of use for more details.