View all

Park Green

32 Viridian Avenue

  • 5 Bedrooms
  • 2 Bathrooms
  • 1 Living Areas
  • 1 Garages
  • 1 Car Pads
  • 204sqm Floor size
  • 336sqm Land size
  • $1,239,000
  • Selling Now
  • $1,239,000 Selling Now
  • 5 Bedrooms
  • 2 Bathrooms
  • 1 Living Areas
  • 1 Garages
  • 1 Car Pads
  • 204sqm Floor size
  • 336sqm Land size

Overview

Discover a stunning two-level, five-bedroom home crafted for ease and family togetherness.

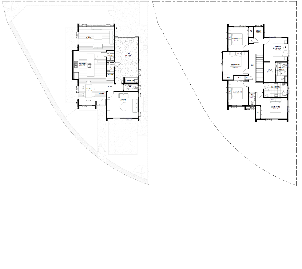
Step inside and be enchanted by the beautifully designed kitchen, complete with quality appliances and elegant Caesarstone benchtops. A seamless flow leads you from the kitchen to the dining and living areas, effortlessly connecting to a private patio and fully landscaped garden, perfect for memorable gatherings. A second living area, just off the dining room, creates a dedicated space for children, ensuring everyone has room to thrive. A convenient WC services the downstairs living, while the laundry is discreetly nestled in the single garage.

Upstairs, five spacious double bedrooms await, each with built-in wardrobes. The primary suite offers a luxurious ensuite and walk-in wardrobe, providing a serene retreat. You'll also find a dedicated study space, a family bathroom, and ample storage, making this home a perfect sanctuary for family life.

Home features include:

5 bedrooms
2 bathrooms
2 living areas
Open plan living, dining and kitchen downstairs
Downstairs WC
Dedicated study space
Private outdoor garden with courtyard area
Single garage, with one off street parking space
Floor to ceiling tiles to bathroom
Fully landscaped
Roller blinds installed
Heat pump
Security alarm system
Double glazing
Master Build Guarantee

Located in the stunning waterside location of Park Green, Karaka, this home is nestled within a vibrant neighbourhood full of amenity. With beautiful inlet walking tracks and cycleways, a newly opened Neighbourhood Centre featuring a cafe, superette and hairdresser plus a primary school and early childhood centre, there is plenty for everyone to enjoy.
READ MORE

Floor plan

   View larger image

*Plans subject to change. Floor Area indicated is approximate only.

DJI 0455 1667665773
  • apartment East Auckland, Auckland
$1,239,000
  • apartment Central Auckland, Auckland
  • apartment East Auckland, Auckland
$1,149,000
  • apartment West Auckland, Auckland
$1,159,000
  • apartment South Auckland, Auckland
  • apartment Central Auckland, Auckland
  • apartment East Auckland, Auckland
$1,300,000
  • apartment Central Auckland, Auckland
  • apartment Central Auckland, Auckland
  • apartment East Auckland, Auckland
$1,299,000
  • apartment North Auckland, Auckland
  • apartment South Auckland, Auckland
$1,199,000
  • apartment West Auckland, Auckland
  • apartment East Auckland, Auckland
$1,269,000

We’d love to show you around

Visit our Showhome to get a feel for the quality of our homes and discuss your requirements with our friendly New Home Consultants. We’d love to work with you to find your dream home.
We’d love to show you around
Contact Us

We use cookies to ensure that we give you the best experience on our website. By continuing to use this website you are giving consent to cookies being used. View our privacy policy and terms of use for more details.