- Find your home
- Showhomes
-
Locations
-
Our Locations
View all
We sell brand new, completed homes in carefully selected locations. We expertly incorporate on-trend colours and finishes, providing you with a blank canvas to add your personal style.
- Auckland Locations
-
Canterbury Locations
- Greenstead - Lincoln
- One Central - City
- Future Locations
- Harakeke Halswell
-
Our Locations
- Resources
- Inspiration
Kaipatiki - Glenfield
9 Ngakete Crescent
- $790,000
- Selling Now
-
$790,000
Selling Now
Overview
Please register your interest to find out more about this brand new neighbourhood and our first release of homes.
Thoughtfully designed with modern living in mind, this brand-new home perfectly blends space, style, and functionality.
This end terrace house truly has everything you could hope for and more, catering to your needs and desires. Downstairs features an open dining, kitchen, and living area that seamlessly extends to your backyard, ideal for entertaining. There's a convenient laundry space and one allocated car park. Upstairs, you'll find two bedrooms, each with its own wardrobe space, alongside a family bathroom complete with a storage cupboard.
Home features include:
-2 bedrooms & 1modern bathroom
-Open plan living, dining, and kitchen area
-Quality appliances
-Outdoor patio area
-Allocated car park
-Fully landscaped
-Heat pump
-Security alarm system
-10 Year Master Build Guarantee
If you were to drop a pin on a location that offers the perfect balance of convenience, community, and green spaces, Kaipatiki would be it. Offering the best of both worlds - relaxed family living with all the conveniences of living in a well-connected and established neighbourhood. With a variety of quality schooling options, shopping and entertainment, and a range of eateries close by, it's convenience without compromise, all within easy reach.
Please consult our sales team to book an appointment and learn more about anticipated settlement dates.
Note: Images are artist impressions only and actual specifications and colours will vary when viewing this home.
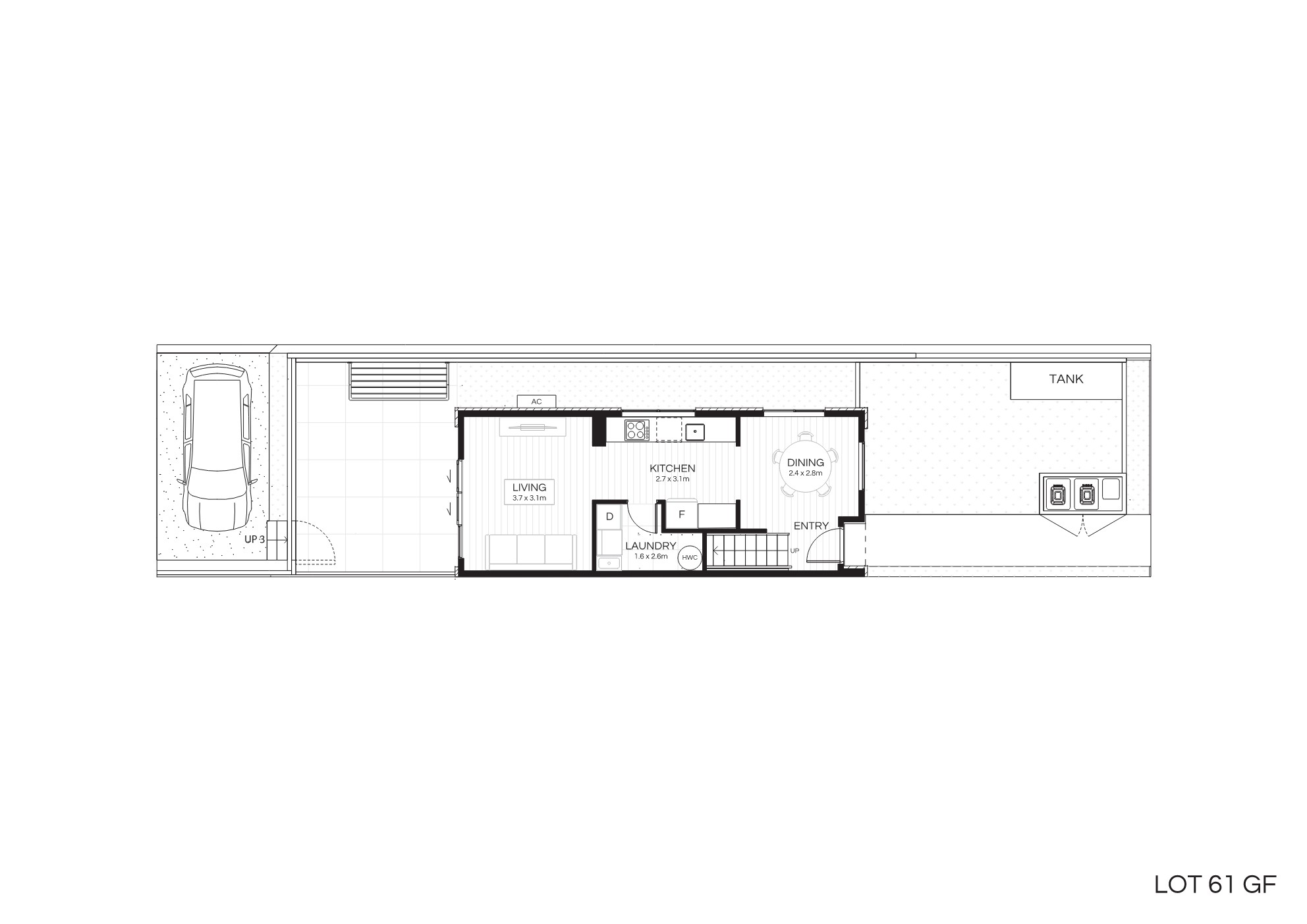
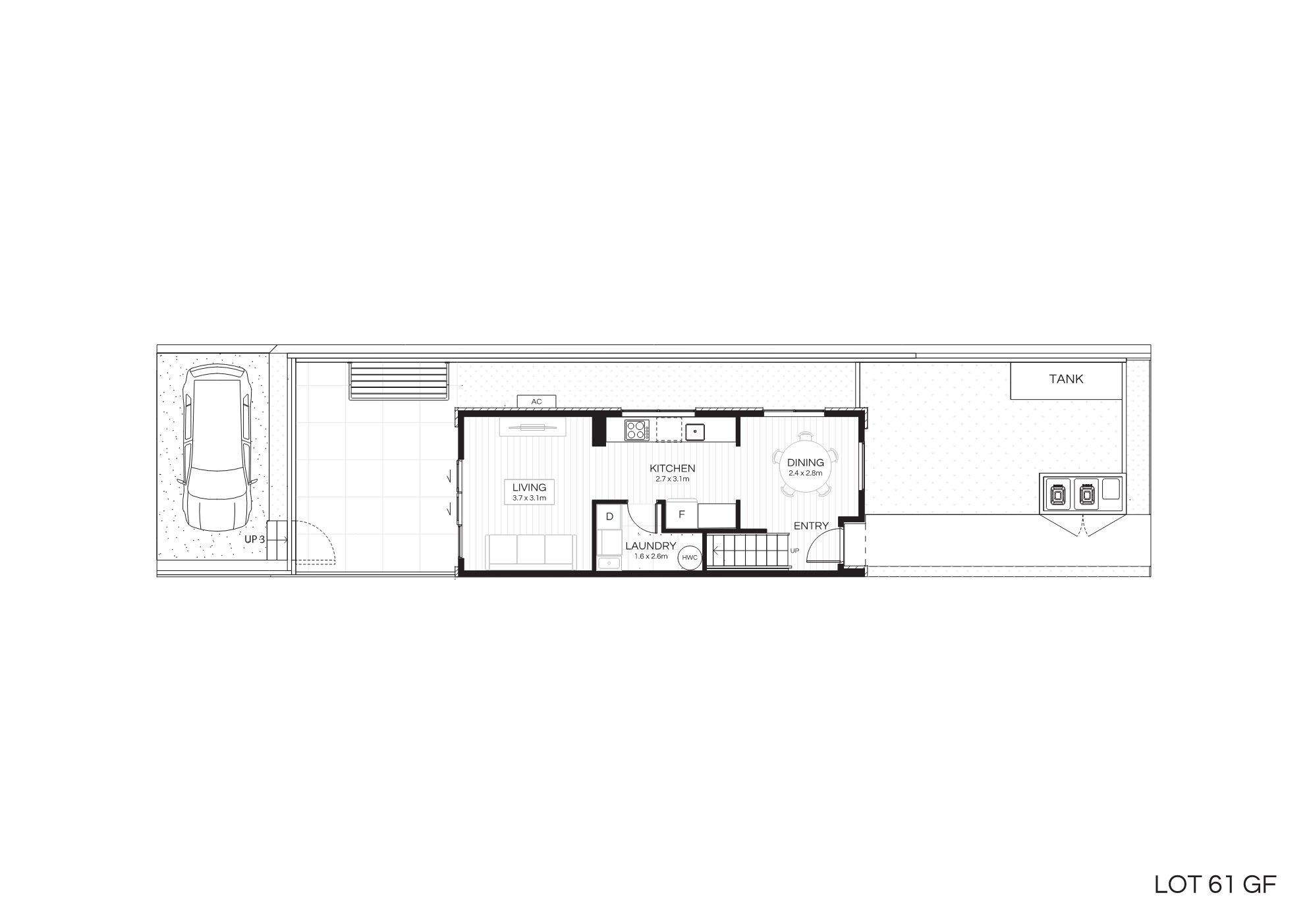
Floor plan
*Plans subject to change. Floor Area indicated is approximate only.
*Plans subject to change. Floor Area indicated is approximate only.
Address
Kaipatiki - Glenfield
Nestled in a peaceful elevated pocket of Glenfield and surrounded by the lush greenery of Witheford Reserve, Kaipātiki offers a lifestyle that blends relaxed living, connection, and everyday ease. With seamless public transport and local amenities close at hand, it’s a place where families grow, neighbours become friends, and everyday life just feels right.
Register your interest to stay up to date with our latest developments and to be notified of our official launch of this brand new neighbourhood.
Similar homes
Fletcher Living Privacy Collection Statement
Fletcher Living will collect and use the personal details you submit or we otherwise collect about you, to provide information on our homes, developments, services and other related purposes.
The full Fletcher Living Privacy Policy is available here. It includes details about what information is collected, and how and who it is used by. It also outlines the process for updating your details, making a complaint or unsubscribing from receiving marketing communication from Fletcher Living.
By submitting this form, you agree to Fletcher Living using your personal information, including names, contact details, registration of your interest in a property and survey results, to send you information to promote its homes, developments and services. You may opt out from receiving further Fletcher Living information from time to time.
In addition to the general information set out in the Fletcher Living Privacy Policy, we collect, use and disclose personal information about you to enable us to perform our business activities and functions and provide quality customer services, including:
• to send communications requested by you;
• answering enquiries and providing information about our products or services;
• entering you into a registration of interest database and/or ballot process if applicable;
• maintaining the content of our website;
• updating our records and keeping your details up to date;
• for our internal business processing, administrative, marketing and planning requirements; and
• for other purposes provided for under any agreement with you or disclosed at the time of collection.
We may disclose your personal information to:
• our employees, related entities, contractors or service providers for the purposes of operating of our business, including information management and electronic storage in other jurisdictions, fulfilling your requests or to provide services and offerings to you;
• suppliers and third parties we have commercial relationships with, and for business, marketing and related purposes; and
• other organisations for purposes authorised with your consent.
We use cookies to ensure that we give you the best experience on our website. By continuing to use this website you are giving consent to cookies being used. View our privacy policy and terms of use for more details.