Three Kings Showhome
23 Riukiuta Avenue, Three Kings. Get directions
Open 7 days: 10am-4pm (Tuesday 12pm-4pm)
Closed public holidays.
We sell brand new, completed homes in carefully selected locations. We expertly incorporate on-trend colours and finishes, providing you with a blank canvas to add your personal style.
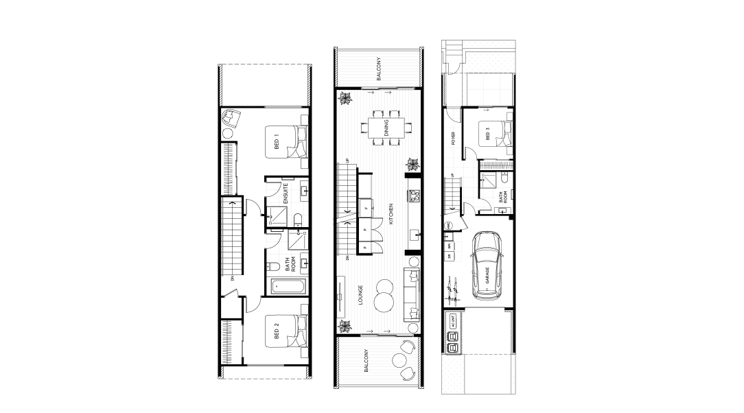
Embrace a lifestyle of low maintenance and quality living with this spectacular brand new, 3-level, 3-bedroom terrace home. Experience generous open-plan living, a European designer kitchen, and high-quality appliances that create a seamless connection between indoor and outdoor spaces. Each home includes 3 spacious double bedrooms, complete with an ensuite for the master suite, providing ample storage and room for everyone. We proudly offer stunning, brand new, 3-level, 3-bedroom terrace homes that embody the essence of low maintenance living.
With an unobstructed view across newly established sports fields, you can gaze out your window and watch your children thrive in abundant open space or ride their bikes along quiet, private streets.
This is a fantastic opportunity to be part of a master planned community, respectfully integrated into the landscape. While your home will have space for your car, you’ll be able to leave it at home with your new lifestyle in this emerging village within the city. Explore peaceful walking trails, accessible dog parks, as well as the library, gym, supermarket and pharmacy all a stone’s throw away. Cross Mt Eden Road to the local primary school or jump on the bus and be in Mt Eden or the CBD for work or play in minutes.
Please talk to our sales team for anticipated settlement and completion for the first quarter 2025.
Home features include:
Please be advised that the photographs provided depict a similar property.
Our Investor Ready Homes meet or exceed current Healthy Homes Standards. Learn more about why you should invest in new with us here
*Plans subject to change. Floor Area indicated is approximate only.
Renew, respect, love - a philosophy for living that builds on the past. The concept of our Three Kings development is founded on respect for Te Tatua-a-Riukiuta (Big King) as a spiritual and physical landmark and a desire to create a sustainable community environment.
Urban design has been carefully considered to incorporate multiple vistas of Big King. Street level views and improved access will restore Big King’s position as a key feature of Auckland, and by doing so give the site a strong sense of location and connection with the wider city.
23 Riukiuta Avenue, Three Kings. Get directions
Open 7 days: 10am-4pm (Tuesday 12pm-4pm)
Closed public holidays.
Fletcher Living will collect and use the personal details you submit or we otherwise collect about you, to provide information on our homes, developments, services and other related purposes.
The full Fletcher Living Privacy Policy is available here. It includes details about what information is collected, and how and who it is used by. It also outlines the process for updating your details, making a complaint or unsubscribing from receiving marketing communication from Fletcher Living.
By submitting this form, you agree to Fletcher Living using your personal information, including names, contact details, registration of your interest in a property and survey results, to send you information to promote its homes, developments and services. You may opt out from receiving further Fletcher Living information from time to time.
In addition to the general information set out in the Fletcher Living Privacy Policy, we collect, use and disclose personal information about you to enable us to perform our business activities and functions and provide quality customer services, including:
• to send communications requested by you;
• answering enquiries and providing information about our products or services;
• entering you into a registration of interest database and/or ballot process if applicable;
• maintaining the content of our website;
• updating our records and keeping your details up to date;
• for our internal business processing, administrative, marketing and planning requirements; and
• for other purposes provided for under any agreement with you or disclosed at the time of collection.
We may disclose your personal information to:
• our employees, related entities, contractors or service providers for the purposes of operating of our business, including information management and electronic storage in other jurisdictions, fulfilling your requests or to provide services and offerings to you;
• suppliers and third parties we have commercial relationships with, and for business, marketing and related purposes; and
• other organisations for purposes authorised with your consent.
We use cookies to ensure that we give you the best experience on our website. By continuing to use this website you are giving consent to cookies being used. View our privacy policy and terms of use for more details.