Stonefields Showhome
13 Marutūāhu Road, Saint Johns, Auckland, New Zealand Get directions
Open 7 days: 10 am to 4 pm (Tuesday 1 pm to 4 pm)
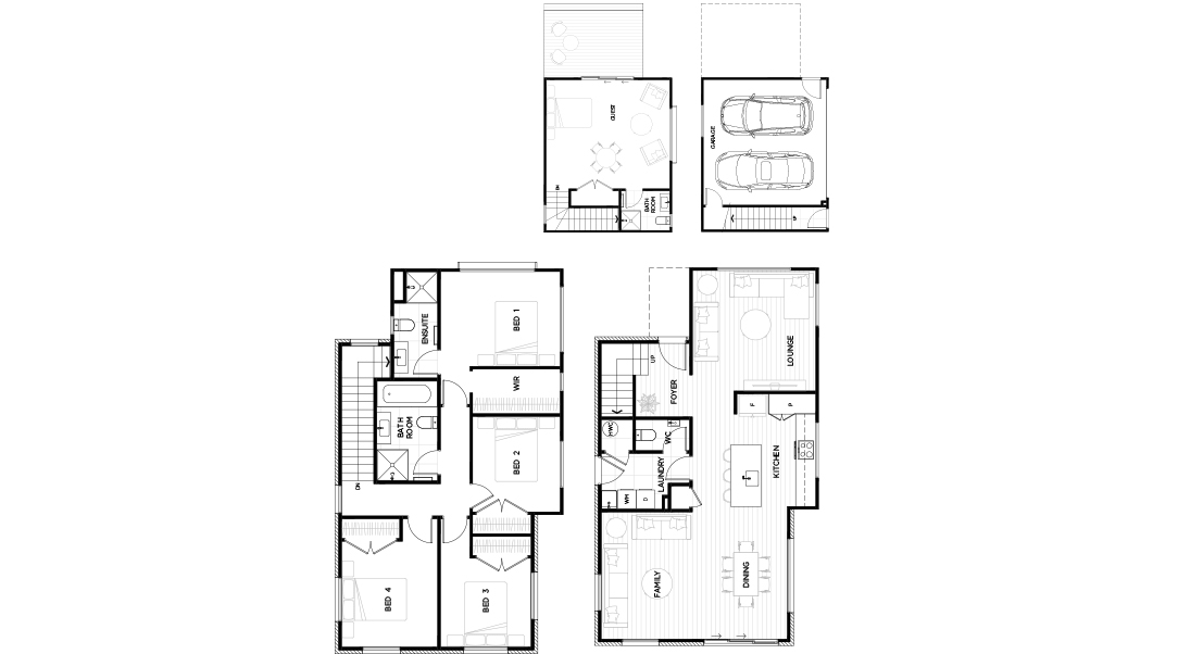
This 5 bedroom stand alone home has been cleverly designed with open plan living, dining and practicality front of mind. Offering a unique floor plan layout, this home design incorporates separate studio living, housed above the double car garage.
Featuring a designer kitchen with quality appliances and stone island benchtop. The generous open plan family living and dining area allows for seamless entertaining areas with a functional and family friendly layout. Indoor-outdoor flow is made effortless with easy access to the outdoor patio space, complimented by a beautifully landscaped, low maintenance front and backyard area. Come home to pure relaxation.
Bedroom living is located in the upstairs area of the home with 3 bathrooms perfect for catering to the household or extended family. The additional lounge space downstairs allows for an extension of entertainment space for the household.
The detached double garage takes care of secure parking and is two-level allowing for an additional bedroom (studio), with wardrobe and ensuite. This is a home that takes living to a new level.
The well established, vibrant urban village of Stonefields showcases popular eateries, reserves, attractively landscaped parks and open spaces with a spectacular outlook to the magnificent Maungarei/Mt Wellington summit. This well established community showcases premium living and convenience at its finest, with beautifully designed homes and amenities right on your doorstep.
This home is close to completion, ready for viewing with anticipated move in date from mid-January 2024.
Home features include:
* 5 bedroom, 3.5 bathrooms (separate WC on ground floor)
* Master with ensuite and walk-in-robe
* Separate laundry space
* European style kitchen
* Open plan living
* High quality kitchen appliances
* Air conditioning heat pump
* Double glazing
* Detached double garage
* Studio unit on first level of garage with ensuite, wardrobe
* Keyless entry
* Security alarm system
* Fully landscaped
* 10 year Master Build Guarantee
N.B. Renders are an artist impression only.
Our Investor Ready Homes meet or exceed current Healthy Homes Standards. Learn more about why you should invest in new with us here
Stonefields is a well-established community and Auckland's newest city fringe suburb. A premium, sought-after location offering all the benefits of a new home within 10kms of the CBD.
Explore this vibrant urban village with popular eateries, reserves, attractively landscaped parks and open spaces. Take a stroll around the peaceful Maungarei Springs Wetland, HeritageTrail or walk up Mt Wellington to take in stunning views of Auckland.
Stonefields School offers the community the very best of modern educational opportunities for young residents, all within a short walk from home, with bus services available to nearby high schools.
We use cookies to ensure that we give you the best experience on our website. By continuing to use this website you are giving consent to cookies being used. View our privacy policy and terms of use for more details.