Stonefields Showhome
1 Whareponga Lane, Stonefields Get directions
Open 7 days: 10am-4pm (Tuesday 12pm-4pm)
Closed public holidays.
We sell brand new, completed homes in carefully selected locations. We expertly incorporate on-trend colours and finishes, providing you with a blank canvas to add your personal style.
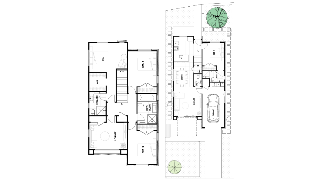
Showcasing this beautiful, contemporary four bedroom family home on Penehareti Rise, close to shops and retail and a short walk away from neighbouring green space.
This home offers an idyllic lifestyle with open plan dining and living and seamless connection to outdoor living to the patio outside. The kitchen incorporates both function and modern living in one with high quality appliances, breakfast bar and plenty of storage options.
A master bedroom with ensuite and walk-in-robe is located upstairs, along with an additional lounge, family bathroom and two double bedrooms. The ground floor also has a bedroom with ensuite, perfect for that extra space for guests or family - a welcoming point of difference.
Internal access single garage allows for secure parking. Low maintenance landscaping completes this home.
The well established, vibrant urban village of Stonefields showcases popular eateries, reserves, attractively landscaped parks and open spaces with a spectacular outlook to the magnificent Maungarei/Mt Wellington summit. This well established community showcases premium living and convenience at its finest, with beautifully designed homes and amenities right on your doorstep.
This home is close to completion, ready for viewing with anticipated move in date from mid-January 2024.
Home features include:
* 5 bedroom, 3.5 bathroom (separate WC)
* Master with ensuite and downstairs room with ensuite
* European style kitchen
* Open plan living
* High quality kitchen appliances
* Air conditioning heat pump
* Double glazing
* Single internal access garage
* Security alarm system
* Fully landscaped
* 10 year Master Build Guarantee
N.B. Renders are an artist impression only.
Our Investor Ready Homes meet or exceed current Healthy Homes Standards. Learn more about why you should invest in new with us here
*Plans subject to change. Floor Area indicated is approximate only.
Stonefields is a well-established community and Auckland's newest city fringe suburb. A premium, sought-after location offering all the benefits of a new home within 10kms of the CBD.
Explore this vibrant urban village with popular eateries, reserves, attractively landscaped parks and open spaces. Take a stroll around the peaceful Maungarei Springs Wetland, HeritageTrail or walk up Mt Wellington to take in stunning views of Auckland.
Stonefields School offers the community the very best of modern educational opportunities for young residents, all within a short walk from home, with bus services available to nearby high schools.
1 Whareponga Lane, Stonefields Get directions
Open 7 days: 10am-4pm (Tuesday 12pm-4pm)
Closed public holidays.
Fletcher Living will collect and use the personal details you submit or we otherwise collect about you, to provide information on our homes, developments, services and other related purposes.
The full Fletcher Living Privacy Policy is available here. It includes details about what information is collected, and how and who it is used by. It also outlines the process for updating your details, making a complaint or unsubscribing from receiving marketing communication from Fletcher Living.
By submitting this form, you agree to Fletcher Living using your personal information, including names, contact details, registration of your interest in a property and survey results, to send you information to promote its homes, developments and services. You may opt out from receiving further Fletcher Living information from time to time.
In addition to the general information set out in the Fletcher Living Privacy Policy, we collect, use and disclose personal information about you to enable us to perform our business activities and functions and provide quality customer services, including:
• to send communications requested by you;
• answering enquiries and providing information about our products or services;
• entering you into a registration of interest database and/or ballot process if applicable;
• maintaining the content of our website;
• updating our records and keeping your details up to date;
• for our internal business processing, administrative, marketing and planning requirements; and
• for other purposes provided for under any agreement with you or disclosed at the time of collection.
We may disclose your personal information to:
• our employees, related entities, contractors or service providers for the purposes of operating of our business, including information management and electronic storage in other jurisdictions, fulfilling your requests or to provide services and offerings to you;
• suppliers and third parties we have commercial relationships with, and for business, marketing and related purposes; and
• other organisations for purposes authorised with your consent.
We use cookies to ensure that we give you the best experience on our website. By continuing to use this website you are giving consent to cookies being used. View our privacy policy and terms of use for more details.