Rockfield, Oranga Showhome
Apartment G07, 157 Rockfield Road Get directions
Appointment only.
Closed public holidays!
We sell brand new, completed homes in carefully selected locations. We expertly incorporate on-trend colours and finishes, providing you with a blank canvas to add your personal style.
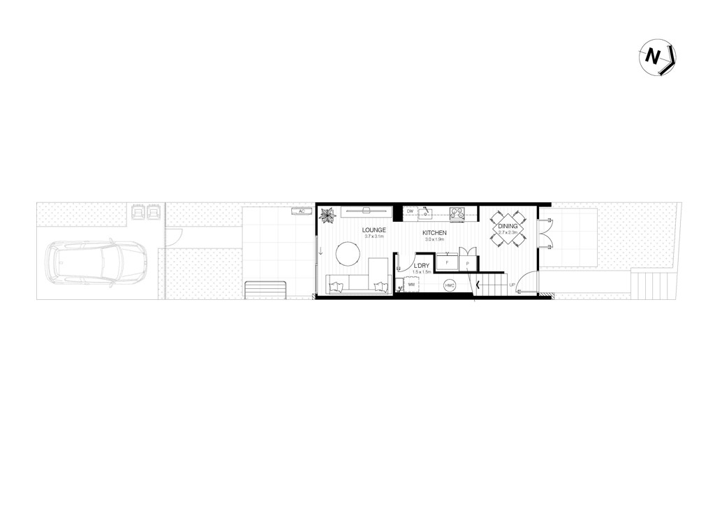
Architecturally designed to suit a range of different lifestyles and stages, our brand new two bedroom apartments are designed with living in mind. Each apartment has been designed with well appointed kitchen and living spaces, with ease of indoor-outdoor flow and contemporary design elements. Apartment living is the perfect choice for a relaxed, low maintenance lifestyle as a secure lock and leave. Limited options available on our first and second floor levels.
Rockfield Apartments offers a unique blend of modern living and community charm within the heart of central Auckland. Surrounded by neighbouring suburbs Onehunga, Oranga and Ellerslie, Rockfield introduces a new standard of quality living at an affordable price.
With a wealth of amenities on your doorstep and beyond, this vibrant community means you are never too far from your favourite spot.
Apartment features include;
N.B. Photos reflect a similar floor plan layout
Talk to our New Home Consultant for more information.
*Plans subject to change. Floor Area indicated is approximate only.
Oranga is a small village with a big heart. A welcoming neighbourhood that is centrally located and well connected - a hidden gem. Fletcher Living are proud to be one of the build partners with Kāinga Ora, working to bring warmer, drier homes to this prominent little suburb, nestled in between Onehunga and Ellerslie.
Apartment G07, 157 Rockfield Road Get directions
Appointment only.
Closed public holidays!
Fletcher Living will collect and use the personal details you submit or we otherwise collect about you, to provide information on our homes, developments, services and other related purposes.
The full Fletcher Living Privacy Policy is available here. It includes details about what information is collected, and how and who it is used by. It also outlines the process for updating your details, making a complaint or unsubscribing from receiving marketing communication from Fletcher Living.
By submitting this form, you agree to Fletcher Living using your personal information, including names, contact details, registration of your interest in a property and survey results, to send you information to promote its homes, developments and services. You may opt out from receiving further Fletcher Living information from time to time.
In addition to the general information set out in the Fletcher Living Privacy Policy, we collect, use and disclose personal information about you to enable us to perform our business activities and functions and provide quality customer services, including:
• to send communications requested by you;
• answering enquiries and providing information about our products or services;
• entering you into a registration of interest database and/or ballot process if applicable;
• maintaining the content of our website;
• updating our records and keeping your details up to date;
• for our internal business processing, administrative, marketing and planning requirements; and
• for other purposes provided for under any agreement with you or disclosed at the time of collection.
We may disclose your personal information to:
• our employees, related entities, contractors or service providers for the purposes of operating of our business, including information management and electronic storage in other jurisdictions, fulfilling your requests or to provide services and offerings to you;
• suppliers and third parties we have commercial relationships with, and for business, marketing and related purposes; and
• other organisations for purposes authorised with your consent.
We use cookies to ensure that we give you the best experience on our website. By continuing to use this website you are giving consent to cookies being used. View our privacy policy and terms of use for more details.