- Find your home
- Showhomes
-
Locations
-
Our Locations
View all
We sell brand new, completed homes in carefully selected locations. We expertly incorporate on-trend colours and finishes, providing you with a blank canvas to add your personal style.
- Auckland Locations
-
Canterbury Locations
- Greenstead - Lincoln
- One Central - City
- Future Locations
- Harakeke Halswell
-
Our Locations
- Resources
- Inspiration
Red Beach
92 Symes Drive
- SOLD
- SOLD
Overview
Red Beach, one of our most popular communities, is nearing completion. This means limited opportunities remain to own a brand new, expertly crafted home in this sought-after location.
Secure your dream home before it's gone! This exciting new terrace has now hit the market.
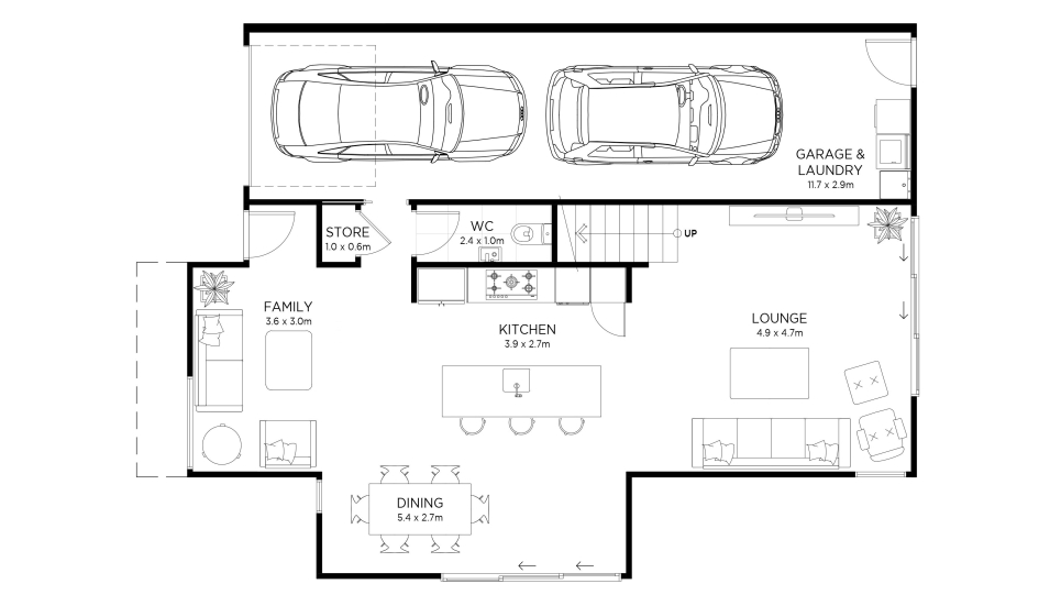
This stunning new four-bedroom home boast all the benefits of brand new with clever use of space and innovative design - featuring open plan living with a designer kitchen, complete with high quality kitchen appliances. The downstairs living area features seamless indoor-outdoor flow to a private patio and generous sized landscaped backyard space.
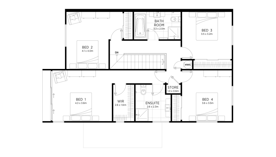
Upstairs you will find four spacious bedrooms including the master with ensuite and walk in wardrobe, a full family bathroom and ample storage. There is plenty of room for the whole family to enjoy.
Home features include:
• 4 Bedrooms
• 2 Bathrooms + separate W.C downstairs
• Designer kitchen with quality appliances
• Heat pump
• Open plan living & dining spaces
• Security alarm system
• Fully landscaped
• Double tandem garage
• 10 Year Master Build Guarantee
Venture outdoors and enjoy everything that this coastal suburb has to offer with a beautiful beach just down the road, nearby playgrounds for the little ones, wide footpaths and a cycle way.
Only a short drive away from a range of local amenities, coastal walkways, eateries and shops.
Visit our showhome or contact our New Home Consultants today!
Floor plan
*Plans subject to change. Floor Area indicated is approximate only.
*Plans subject to change. Floor Area indicated is approximate only.
Address
Red Beach
Red Beach offers a unique coastal lifestyle only 35 minutes drive north of Auckland.
Neighbouring communities of Orewa and Silverdale offer popular family beaches, great eateries, recreational facilities and shopping - all within a short drive of this new development.
Previously the Peninsula Golf Course, Red Beach offers a sense of space in a location known for its stunning scenery.
Similar homes
Fletcher Living Privacy Collection Statement
Fletcher Living will collect and use the personal details you submit or we otherwise collect about you, to provide information on our homes, developments, services and other related purposes.
The full Fletcher Living Privacy Policy is available here. It includes details about what information is collected, and how and who it is used by. It also outlines the process for updating your details, making a complaint or unsubscribing from receiving marketing communication from Fletcher Living.
By submitting this form, you agree to Fletcher Living using your personal information, including names, contact details, registration of your interest in a property and survey results, to send you information to promote its homes, developments and services. You may opt out from receiving further Fletcher Living information from time to time.
In addition to the general information set out in the Fletcher Living Privacy Policy, we collect, use and disclose personal information about you to enable us to perform our business activities and functions and provide quality customer services, including:
• to send communications requested by you;
• answering enquiries and providing information about our products or services;
• entering you into a registration of interest database and/or ballot process if applicable;
• maintaining the content of our website;
• updating our records and keeping your details up to date;
• for our internal business processing, administrative, marketing and planning requirements; and
• for other purposes provided for under any agreement with you or disclosed at the time of collection.
We may disclose your personal information to:
• our employees, related entities, contractors or service providers for the purposes of operating of our business, including information management and electronic storage in other jurisdictions, fulfilling your requests or to provide services and offerings to you;
• suppliers and third parties we have commercial relationships with, and for business, marketing and related purposes; and
• other organisations for purposes authorised with your consent.
We use cookies to ensure that we give you the best experience on our website. By continuing to use this website you are giving consent to cookies being used. View our privacy policy and terms of use for more details.