1 Koura Drive
1 Koura Drive Get directions
NORMAL HOURS: Open Saturday & Sunday 10am-4pm. Monday-Friday by appointment.
We sell brand new, completed homes in carefully selected locations. We expertly incorporate on-trend colours and finishes, providing you with a blank canvas to add your personal style.
Discover the perfect blend of comfort and style in this stunning new release four-bedroom end terrace home, ready now.
Please note this home is still under construction and not available to view at this time, please talk to the New Home Consultants for anticipated completion dates.
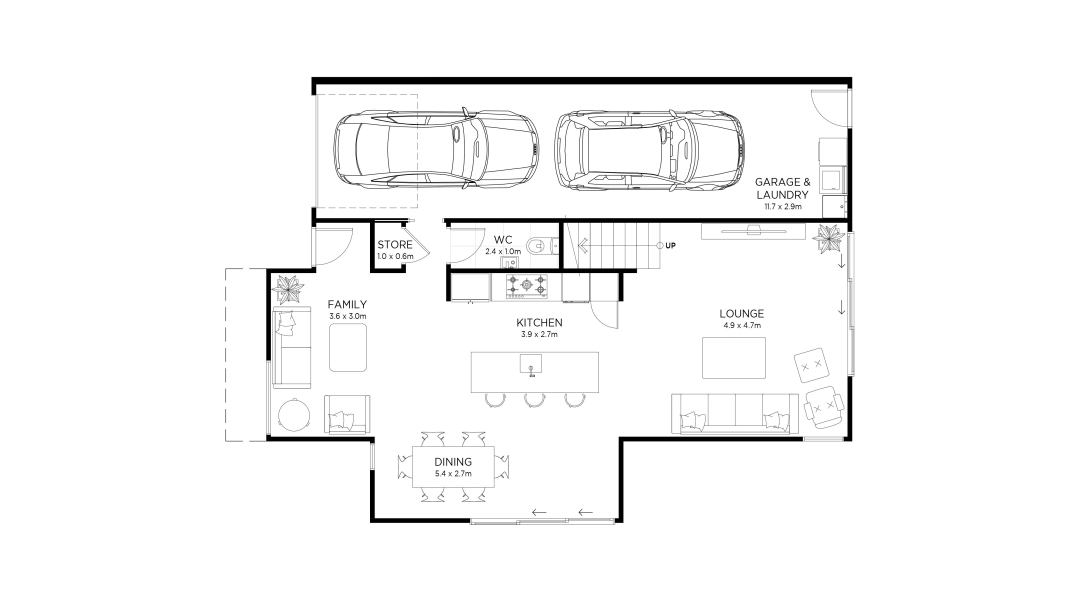
This stunning new two-level, four bedroom terrace home is designed for modern living. Featuring beautifully designed and well appointed kitchens with quality appliances, flowing directly into the open plan living and dining areas. These spaces feature seamless indoor-outdoor flow to the outdoor area - perfect for entertaining family and friends.
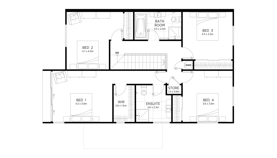
Four bedrooms are located in the upstairs area including the master bedroom featuring a walk in wardrobe and a stylish ensuite. A modern family bathroom and ample storage is also found on this level.
Complete with double tandem internal car garaging with laundry space, guest W.C on living level, heat pump and more - don't delay, learn more from our New Home Consultants today!
Home features include:
This home is perfectly positioned to enjoy all that Red Beach has to offer. Within walking distance to the beach, and a short drive away from a range of local amenities, coastal walkways, eateries and shops.
Please note interior images are virtually staged and of a similar to home, they are indicative only and used for marketing purposes. Specifications and colour will vary when viewing this home.
*Plans subject to change. Floor Area indicated is approximate only.
*Plans subject to change. Floor Area indicated is approximate only.
Red Beach offers a unique coastal lifestyle only 35 minutes drive north of Auckland.
Neighbouring communities of Orewa and Silverdale offer popular family beaches, great eateries, recreational facilities and shopping - all within a short drive of this new development.
Previously the Peninsula Golf Course, Red Beach offers a sense of space in a location known for its stunning scenery.
1 Koura Drive Get directions
NORMAL HOURS: Open Saturday & Sunday 10am-4pm. Monday-Friday by appointment.
Fletcher Living will collect and use the personal details you submit or we otherwise collect about you, to provide information on our homes, developments, services and other related purposes.
The full Fletcher Living Privacy Policy is available here. It includes details about what information is collected, and how and who it is used by. It also outlines the process for updating your details, making a complaint or unsubscribing from receiving marketing communication from Fletcher Living.
By submitting this form, you agree to Fletcher Living using your personal information, including names, contact details, registration of your interest in a property and survey results, to send you information to promote its homes, developments and services. You may opt out from receiving further Fletcher Living information from time to time.
In addition to the general information set out in the Fletcher Living Privacy Policy, we collect, use and disclose personal information about you to enable us to perform our business activities and functions and provide quality customer services, including:
• to send communications requested by you;
• answering enquiries and providing information about our products or services;
• entering you into a registration of interest database and/or ballot process if applicable;
• maintaining the content of our website;
• updating our records and keeping your details up to date;
• for our internal business processing, administrative, marketing and planning requirements; and
• for other purposes provided for under any agreement with you or disclosed at the time of collection.
We may disclose your personal information to:
• our employees, related entities, contractors or service providers for the purposes of operating of our business, including information management and electronic storage in other jurisdictions, fulfilling your requests or to provide services and offerings to you;
• suppliers and third parties we have commercial relationships with, and for business, marketing and related purposes; and
• other organisations for purposes authorised with your consent.
We use cookies to ensure that we give you the best experience on our website. By continuing to use this website you are giving consent to cookies being used. View our privacy policy and terms of use for more details.