- Find your home
- Showhomes
-
Locations
-
Our Locations
View all
We sell brand new, completed homes in carefully selected locations. We expertly incorporate on-trend colours and finishes, providing you with a blank canvas to add your personal style.
- Auckland Locations
-
Canterbury Locations
- Greenstead - Lincoln
- One Central - City
- Future Locations
- Harakeke Halswell
-
Our Locations
- Resources
- Inspiration
Red Beach
33A Cambie Avenue
- SOLD
- SOLD
Overview
Brand new, modern, light-filled, single level homes - selling now!
Please contact our sales team for anticipated completion dates.
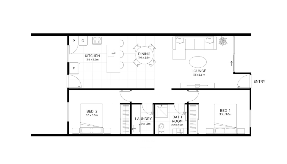
This stunning new single level, 2 bedroom home ticks all the boxes. Featuring a stunning designer kitchen with quality appliances which flows seamlessly through to the open plan living and dining areas.
Complete with two spacious bedrooms, ample storage space, a separate laundry, modern bathroom and 1 off street car park.
It really does tick all the boxes - what are you waiting for? Call today to discuss how you can make this brand new, modern, low maintenance, 2 bedroom, single level home yours.
Home features include:
- Two spacious bedrooms
- Modern bathroom
- Ample storage space
- 1 off street car park
- Designer kitchen with quality appliances
- Heat pump
- Security alarm system
- Fully landscaped
- 10 Year Master Build Guarantee
Please note: Imagery used is artist impression and is indicative only.
Floor plan
*Plans subject to change. Floor Area indicated is approximate only.
Address
Red Beach
Red Beach offers a unique coastal lifestyle only 35 minutes drive north of Auckland.
Neighbouring communities of Orewa and Silverdale offer popular family beaches, great eateries, recreational facilities and shopping - all within a short drive of this new development.
Previously the Peninsula Golf Course, Red Beach offers a sense of space in a location known for its stunning scenery.
Similar homes
Fletcher Living Privacy Collection Statement
Fletcher Living will collect and use the personal details you submit or we otherwise collect about you, to provide information on our homes, developments, services and other related purposes.
The full Fletcher Living Privacy Policy is available here. It includes details about what information is collected, and how and who it is used by. It also outlines the process for updating your details, making a complaint or unsubscribing from receiving marketing communication from Fletcher Living.
By submitting this form, you agree to Fletcher Living using your personal information, including names, contact details, registration of your interest in a property and survey results, to send you information to promote its homes, developments and services. You may opt out from receiving further Fletcher Living information from time to time.
In addition to the general information set out in the Fletcher Living Privacy Policy, we collect, use and disclose personal information about you to enable us to perform our business activities and functions and provide quality customer services, including:
• to send communications requested by you;
• answering enquiries and providing information about our products or services;
• entering you into a registration of interest database and/or ballot process if applicable;
• maintaining the content of our website;
• updating our records and keeping your details up to date;
• for our internal business processing, administrative, marketing and planning requirements; and
• for other purposes provided for under any agreement with you or disclosed at the time of collection.
We may disclose your personal information to:
• our employees, related entities, contractors or service providers for the purposes of operating of our business, including information management and electronic storage in other jurisdictions, fulfilling your requests or to provide services and offerings to you;
• suppliers and third parties we have commercial relationships with, and for business, marketing and related purposes; and
• other organisations for purposes authorised with your consent.
We use cookies to ensure that we give you the best experience on our website. By continuing to use this website you are giving consent to cookies being used. View our privacy policy and terms of use for more details.