- Find your home
- Showhomes
-
Locations
-
Our Locations
View all
We sell brand new, completed homes in carefully selected locations. We expertly incorporate on-trend colours and finishes, providing you with a blank canvas to add your personal style.
- Auckland Locations
-
Canterbury Locations
- Greenstead - Lincoln
- One Central - City
- Future Locations
- Harakeke Halswell
-
Our Locations
- Resources
- Inspiration
Red Beach
Two Bedroom Terrace Homes
- SOLD
- SOLD
Overview
Red Beach, one of our most popular communities, is nearing completion. This means limited opportunities remain to own a brand new, expertly crafted home in this sought-after location.
These spacious new two-bedroom terrace homes are ready now and available for purchase. Don't miss out we have a limited number available.
This delightful home boasts light filled, open plan living, perfect for first home buyers who are looking to step onto the property ladder or savvy investors! You have all the comforts of brand new, with modern kitchen appliances, seamless indoor-outdoor flow and low-maintenance landscaping all designed with your needs in mind.
Home features include:
- 2 Bedrooms
- 1.5 Bathrooms
- 1 living spaces
- Open plan living and dining
- Separate laundry space
- Designer kitchen featuring quality appliances
- Heat pump & Security alarm system
- 10 Year Master Build Guarantee
- Outdoor patio & living area
This home is perfectly positioned to enjoy all that Red Beach has to offer. Within walking distance to the beach, and a short drive away from a range of local amenities, coastal walkways, eateries and shops.
Please note images are virtually staged, they are indicative only and used for marketing purposes.
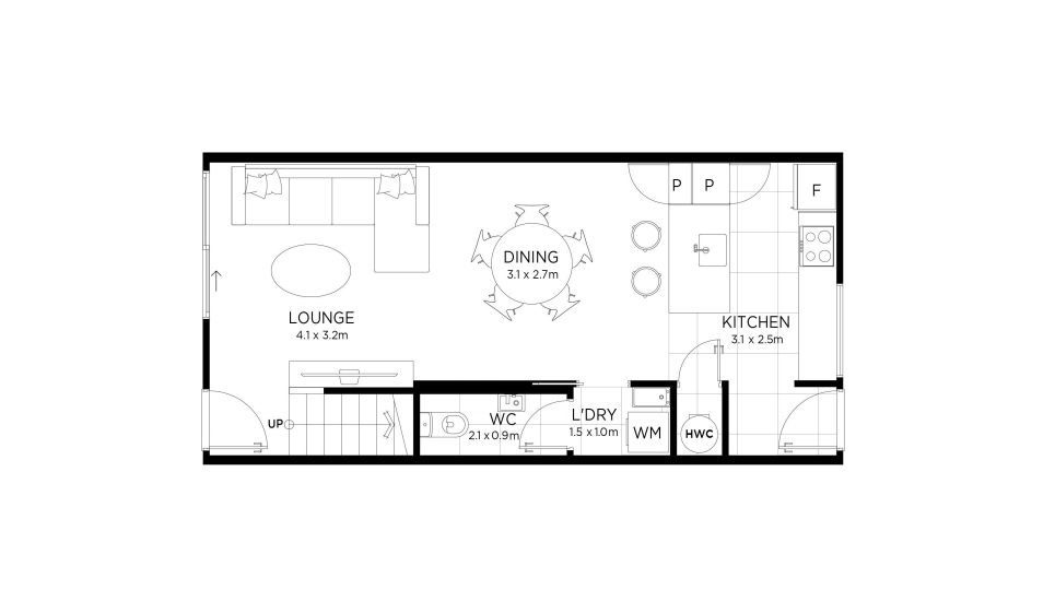
Floor plan
*Plans subject to change. Floor Area indicated is approximate only.
*Plans subject to change. Floor Area indicated is approximate only.
Address
Red Beach
Red Beach offers a unique coastal lifestyle only 35 minutes drive north of Auckland.
Neighbouring communities of Orewa and Silverdale offer popular family beaches, great eateries, recreational facilities and shopping - all within a short drive of this new development.
Previously the Peninsula Golf Course, Red Beach offers a sense of space in a location known for its stunning scenery.
Similar homes
Fletcher Living Privacy Collection Statement
Fletcher Living will collect and use the personal details you submit or we otherwise collect about you, to provide information on our homes, developments, services and other related purposes.
The full Fletcher Living Privacy Policy is available here. It includes details about what information is collected, and how and who it is used by. It also outlines the process for updating your details, making a complaint or unsubscribing from receiving marketing communication from Fletcher Living.
By submitting this form, you agree to Fletcher Living using your personal information, including names, contact details, registration of your interest in a property and survey results, to send you information to promote its homes, developments and services. You may opt out from receiving further Fletcher Living information from time to time.
In addition to the general information set out in the Fletcher Living Privacy Policy, we collect, use and disclose personal information about you to enable us to perform our business activities and functions and provide quality customer services, including:
• to send communications requested by you;
• answering enquiries and providing information about our products or services;
• entering you into a registration of interest database and/or ballot process if applicable;
• maintaining the content of our website;
• updating our records and keeping your details up to date;
• for our internal business processing, administrative, marketing and planning requirements; and
• for other purposes provided for under any agreement with you or disclosed at the time of collection.
We may disclose your personal information to:
• our employees, related entities, contractors or service providers for the purposes of operating of our business, including information management and electronic storage in other jurisdictions, fulfilling your requests or to provide services and offerings to you;
• suppliers and third parties we have commercial relationships with, and for business, marketing and related purposes; and
• other organisations for purposes authorised with your consent.
We use cookies to ensure that we give you the best experience on our website. By continuing to use this website you are giving consent to cookies being used. View our privacy policy and terms of use for more details.