- Find your home
- Showhomes
-
Locations
-
Our Locations
View all
We sell brand new, completed homes in carefully selected locations. We expertly incorporate on-trend colours and finishes, providing you with a blank canvas to add your personal style.
- Auckland Locations
-
Canterbury Locations
- Greenstead - Lincoln
- One Central - City
- Future Locations
- Harakeke Halswell
-
Our Locations
- Resources
- Inspiration
Oranga
11D Namata Road
- SOLD
- SOLD
Overview
Secure your opportunity for your first home or a low maintenance investment property. This brand new, high quality 2-bedroom standalone home offers open plan living and dining in a compact version. Contemporary interiors, clever design and modernised features make everyday living and entertaining effortless.
Bedroom living is located upstairs with a family sized bathroom to cater for the household and an additional toilet downstairs for the convenience of guests. Low maintenance landscaping completes this home.
Oranga holds prominence for its central location, excellent proximity to employment hubs and great public transport connections. It is a well connected hidden gem, being regenerated and redefined. With a wealth of amenities on your doorstep and beyond, this vibrant community means you are never too far from your favourite spot.
This home is under construction with an anticipated completion and settlement date of mid-2023.
Home features include:
* 2 bedroom, 1.5 bathroom (separate downstairs W.C)
* European style kitchen
* Open plan living
* High quality kitchen appliances
* Air conditioning heat pump
* Double glazing
* Single car pad
* Security alarm system
* 10 year Master Build Guarantee
Contact our New Home Consultant to find out more about our upcoming releases at our Oranga location.
Our Investor Ready Homes meet or exceed current Healthy Homes Standards. Learn more about why you should invest in new with us here
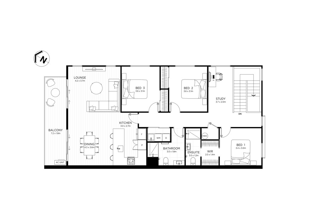
Floor plan
*Plans subject to change. Floor Area indicated is approximate only.
Address
Oranga
Oranga is a small village with a big heart. A welcoming neighbourhood that is centrally located and well connected - a hidden gem. Fletcher Living are proud to be one of the build partners with Kāinga Ora, working to bring warmer, drier homes to this prominent little suburb, nestled in between Onehunga and Ellerslie.
Similar homes
Fletcher Living Privacy Collection Statement
Fletcher Living will collect and use the personal details you submit or we otherwise collect about you, to provide information on our homes, developments, services and other related purposes.
The full Fletcher Living Privacy Policy is available here. It includes details about what information is collected, and how and who it is used by. It also outlines the process for updating your details, making a complaint or unsubscribing from receiving marketing communication from Fletcher Living.
By submitting this form, you agree to Fletcher Living using your personal information, including names, contact details, registration of your interest in a property and survey results, to send you information to promote its homes, developments and services. You may opt out from receiving further Fletcher Living information from time to time.
In addition to the general information set out in the Fletcher Living Privacy Policy, we collect, use and disclose personal information about you to enable us to perform our business activities and functions and provide quality customer services, including:
• to send communications requested by you;
• answering enquiries and providing information about our products or services;
• entering you into a registration of interest database and/or ballot process if applicable;
• maintaining the content of our website;
• updating our records and keeping your details up to date;
• for our internal business processing, administrative, marketing and planning requirements; and
• for other purposes provided for under any agreement with you or disclosed at the time of collection.
We may disclose your personal information to:
• our employees, related entities, contractors or service providers for the purposes of operating of our business, including information management and electronic storage in other jurisdictions, fulfilling your requests or to provide services and offerings to you;
• suppliers and third parties we have commercial relationships with, and for business, marketing and related purposes; and
• other organisations for purposes authorised with your consent.
We use cookies to ensure that we give you the best experience on our website. By continuing to use this website you are giving consent to cookies being used. View our privacy policy and terms of use for more details.