KiwiBuild Homes in Te Atatū Peninsula
Located on Titoki Street, these KiwiBuild homes are nestled within our Te Atatū Peninsula location, which has already proven to be a popular choice for first home buyers. These modern homes are low maintenance and well specced with a mix of one-bedroom apartments and two-bedroom terrace homes. Designed and built with your needs in mind, each home will feature open plan living with a modern kitchen and bathroom.
Titoki Street, Te Atatū Peninsula
1 bedroom walkup apartments will sell for $500,000
2 bedroom terraces will sell for $600,000 (SOLD)
Keen to find out more about these homes? Contact Judy McGaffin on 027 807 6536 or via email teatatupeninsula@frl.co.nz
If you're new to KiwiBuild, please allow time to create your KiwiBuild account and to apply for eligibility. You will need to meet all of the KiwiBuild eligibility to become pre-approved.
Visit the KiwiBuild website by clicking the KiwiBuild logo below
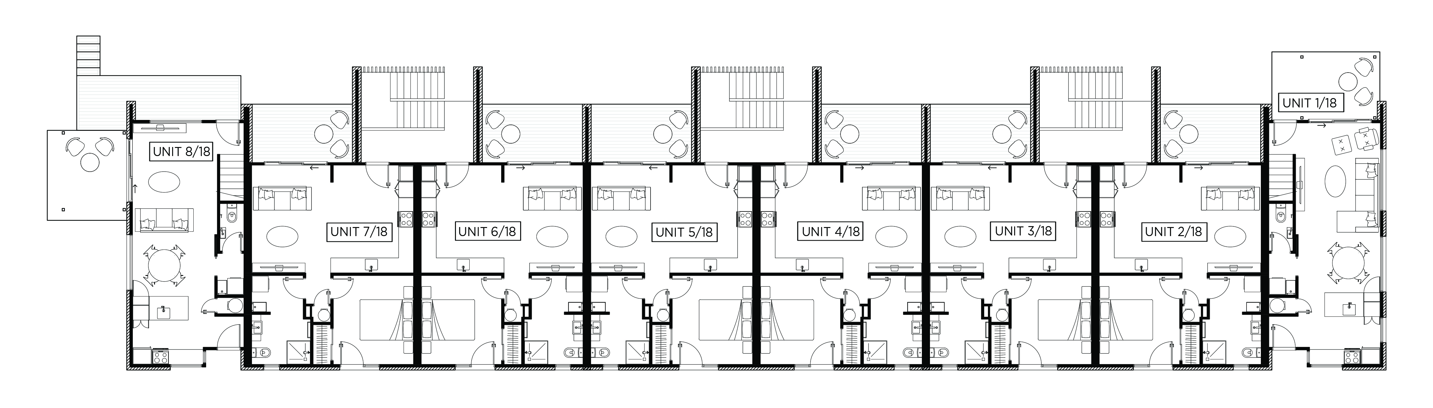
Floor Plan Explorer
Select and browse through the range of KiwiBuild home designs we will have available using the explorer below.
Your new lifestyle starts here
Surrounded by the Waitematā Harbour, Te Atatū Peninsula is a stunning coastal location offering a strong community vibe, great local amenities, eateries close by and recreational green spaces within walking distance.
Register your interest
If you are interested in hearing more about KiwiBuild at our Te Atatū Peninsula location - please indicate your preferred bedrooms and price range below and we will stay in touch with progress updates.
Thank you! Our sales team will be in touch shortly.
Location
Te Atatū Peninsula offers easy access to motorways, key arterial routes, public transport and major sights and attractions around Auckland - conveniently positioned within close proximity to the CBD making this an ideal location to settle into.
We use cookies to ensure that we give you the best experience on our website. By continuing to use this website you are giving consent to cookies being used. View our privacy policy and terms of use for more details.
